
薪ストーブと蛍の夜。鎌倉・稲村ケ崎で木に包まれて暮らす (神奈川県鎌倉市119㎡の売買物件)
玄関に入った瞬間、
ふわっと木の香り。
視界に入るのは、
天井いっぱいに組まれた
梁と柱。
この家の主役は、
間違いなく“木”です。

鎌倉・稲村ケ崎の自然に
溶け込むように建つ、
伝統工法の住まい。
金物を使わない木組み構造という、
今では少し贅沢なつくり。
2010年築ですが、
むしろこれから時間を重ねて
味わいが増していく予感しかしません。

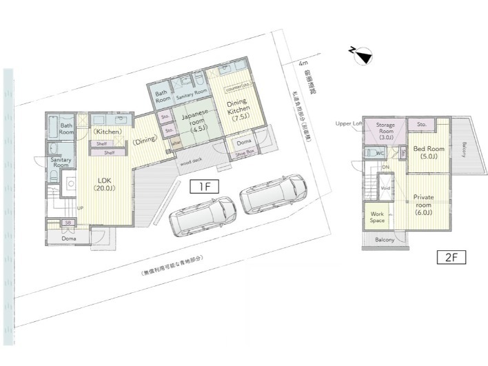
間取りは2SLDK+1DKの
完全分離型二世帯住宅。
平屋と2階建てが
ウッドデッキでゆるやかにつながります。

玄関もキッチンも
それぞれ独立しているので、
親世帯と暮らしてもよし、
仕事場を分けてもよし。
まずリビング。
大きな窓から差し込む光と、
木の床のやわらかな反射。
梁を見上げながら過ごす時間は、
ただソファに座っているだけでも
満足感があります。
サーフボードが天井に吊られているのも、
この家によく似合う。

そして、冬の主役は薪ストーブ。
中央に据えられた存在感のある一台。
火を眺めながら過ごす夜。
火を起こす手間すら楽しみに変わる暮らし。
きっと冬が近づくたびに、
少しワクワクするんだろうな。

キッチンも木の風合いを生かすデザイン。
料理をしながら、
窓の外の緑を感じられる配置。
休日の朝にはコーヒーを淹れて。
家事を“時間”として味わえる空間。
トイレの扉を開けると、
なんと視界いっぱいの緑が。
家の裏には小川が流れていて、
蛍が生息しているそう。

夜、灯りを落として外に出る。
静かな水音と、ふわっと浮かぶ光。
これ、自宅の裏です。
ちょっと現実味が薄いくらい贅沢。

この家、アウトドア好きには
かなり刺さります。
海、釣り、キャンプ、DIY。
どれも「趣味」じゃなく「日常」に
なりそうな距離感。
庭で道具を手入れしたり、
ウッドデッキで夕涼みしたり。
休日の過ごし方が自然と外に向いていく。
そして最後に、この街の話を少し。
最寄りは江ノ電「極楽寺」駅 徒歩7分、
「稲村ケ崎」駅 徒歩9分。
駅周辺は、もう風情の教科書。

古い建物、静かな路地、季節の匂い。
江ノ電が日常の風景になる暮らしです。

徒歩5分の稲村ケ崎公園からは海。
ずっと見ていられる景色。
駅近くのパン屋さんの名物
「極楽寺アンパン」も、
きっと生活の一部になる予感。

海の近くで、木の家で、火を囲む。
蛍の季節を待ちながら暮らす。
アウトドアもDIYも好きな人が、
ゆっくり時間を重ねていく。
そんな未来が、
すでに似合っている家でした。
ふわっと木の香り。
視界に入るのは、
天井いっぱいに組まれた
梁と柱。
この家の主役は、
間違いなく“木”です。

鎌倉・稲村ケ崎の自然に
溶け込むように建つ、
伝統工法の住まい。
金物を使わない木組み構造という、
今では少し贅沢なつくり。
2010年築ですが、
むしろこれから時間を重ねて
味わいが増していく予感しかしません。

間取りは2SLDK+1DKの
完全分離型二世帯住宅。
平屋と2階建てが
ウッドデッキでゆるやかにつながります。

玄関もキッチンも
それぞれ独立しているので、
親世帯と暮らしてもよし、
仕事場を分けてもよし。

まずリビング。
大きな窓から差し込む光と、
木の床のやわらかな反射。
梁を見上げながら過ごす時間は、
ただソファに座っているだけでも
満足感があります。
サーフボードが天井に吊られているのも、
この家によく似合う。

そして、冬の主役は薪ストーブ。
中央に据えられた存在感のある一台。
火を眺めながら過ごす夜。
火を起こす手間すら楽しみに変わる暮らし。
きっと冬が近づくたびに、
少しワクワクするんだろうな。

キッチンも木の風合いを生かすデザイン。
料理をしながら、
窓の外の緑を感じられる配置。
休日の朝にはコーヒーを淹れて。
家事を“時間”として味わえる空間。

トイレの扉を開けると、
なんと視界いっぱいの緑が。
家の裏には小川が流れていて、
蛍が生息しているそう。

夜、灯りを落として外に出る。
静かな水音と、ふわっと浮かぶ光。
これ、自宅の裏です。
ちょっと現実味が薄いくらい贅沢。

この家、アウトドア好きには
かなり刺さります。
海、釣り、キャンプ、DIY。
どれも「趣味」じゃなく「日常」に
なりそうな距離感。
庭で道具を手入れしたり、
ウッドデッキで夕涼みしたり。
休日の過ごし方が自然と外に向いていく。

そして最後に、この街の話を少し。
最寄りは江ノ電「極楽寺」駅 徒歩7分、
「稲村ケ崎」駅 徒歩9分。
駅周辺は、もう風情の教科書。

古い建物、静かな路地、季節の匂い。
江ノ電が日常の風景になる暮らしです。

徒歩5分の稲村ケ崎公園からは海。
ずっと見ていられる景色。

駅近くのパン屋さんの名物
「極楽寺アンパン」も、
きっと生活の一部になる予感。

海の近くで、木の家で、火を囲む。
蛍の季節を待ちながら暮らす。
アウトドアもDIYも好きな人が、
ゆっくり時間を重ねていく。
そんな未来が、
すでに似合っている家でした。
いま募集中の物件一覧
お部屋探しに!今空いている物件だけを絞り込んで探せます
詳しくはこちら


