
お一人様限定。穏やかで心地よい暮らしが叶う、建築家設計の1LDK (東京都大田区41㎡の賃貸物件)
京浜東北線の大森駅から10分。
山王の静かな住宅街を歩いていると、
端正な外観の建物が姿を現します。

とりわけ目を引くのは、
石や砂利、コンクリート平板で
作り込まれた開放的なアプローチ。

そのまま奥へ進むと、
青々とした芝の中庭が広がっていました。
モダンな箱のような建物との
コントラストが美しく、
まるで美術館のようです。

共用スペースもご覧のとおり。
ここが郵便受けと宅配BOX、
駐輪場だなんて驚きますが、
建築家設計の建物と聞いて納得。
なるほど、それで
お部屋の玄関まで
この美しさなのですね。

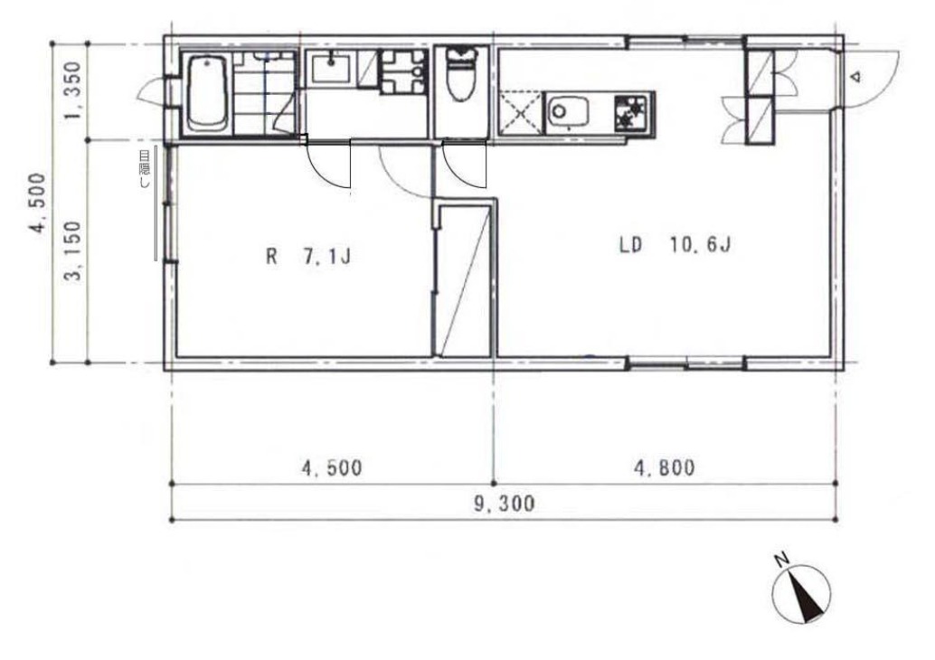
このたび2階の41.85㎡の1LDKが
住人を募集しているのですが、
ポイントは「お一人様限定」
であること。

玄関を入ると
しゅっと縦に長い下駄箱と
かわいらしい木のフックが
やさしく出迎えてくれ、
その先に広がるのは
10.6帖のリビングダイニング。
白を貴重とした
きわめてシンプルな空間に、
色の濃い無垢フローリングが
よくお似合いです。
どんなインテリアを置いても
絵になりそうなリビングを、
自分のためだけに使える贅沢。
どうお部屋づくりをしようか、
考えただけでわくわくします。

光がたっぷりと注ぐ窓のそばを
リビングスペースにするか、
ダイニングスペースにするか、
それが悩ましい。

キッチンは写真奥の左に
隠れていて、
リビングダイニングに
干渉しないのも良い感じ。
それでも2くちガスコンロに
作業スペース、収納を備え、
使い勝手は申し分なし。
背後に大きな窓があり、

お料理しながら振り返れば、
中庭と広い空が
目を楽しませてくれます。

リビングダイニングの隣は
約7帖の寝室で、
こちらも一人暮らしには
贅沢なほどの広さ。
ぜひ見てほしいのは、
寝室からリビングダイニングを
眺めたときの、ゆとりと開放感。
朝起きた瞬間にこの光景が
目に飛び込んでくるなんて、
ちょっと幸せすぎやしませんか。

水回りは、居室の壁の向こう側に。

コンパクトな空間に収まる
すっきりしたトイレ、
これでもかと棚が備わった
スタイリッシュで機能的な洗面、

「ここも一人で使っていいんですか」と
確認したくなるバスルーム。
はい、もちろん一人で
使っていいんですよ。

静かな環境、美しい建物、
ゆとりある空間、整った設備。
それらすべての恩恵を受けて
紡いでいく、穏やかな日々。

そんな一人暮らしを叶えたい人に
ぜひ出会ってほしいお部屋です。
山王の静かな住宅街を歩いていると、
端正な外観の建物が姿を現します。

とりわけ目を引くのは、
石や砂利、コンクリート平板で
作り込まれた開放的なアプローチ。

そのまま奥へ進むと、
青々とした芝の中庭が広がっていました。
モダンな箱のような建物との
コントラストが美しく、
まるで美術館のようです。

共用スペースもご覧のとおり。
ここが郵便受けと宅配BOX、
駐輪場だなんて驚きますが、
建築家設計の建物と聞いて納得。

なるほど、それで
お部屋の玄関まで
この美しさなのですね。

このたび2階の41.85㎡の1LDKが
住人を募集しているのですが、
ポイントは「お一人様限定」
であること。

玄関を入ると
しゅっと縦に長い下駄箱と
かわいらしい木のフックが
やさしく出迎えてくれ、

その先に広がるのは
10.6帖のリビングダイニング。
白を貴重とした
きわめてシンプルな空間に、
色の濃い無垢フローリングが
よくお似合いです。
どんなインテリアを置いても
絵になりそうなリビングを、
自分のためだけに使える贅沢。
どうお部屋づくりをしようか、
考えただけでわくわくします。

光がたっぷりと注ぐ窓のそばを
リビングスペースにするか、
ダイニングスペースにするか、
それが悩ましい。

キッチンは写真奥の左に
隠れていて、
リビングダイニングに
干渉しないのも良い感じ。

それでも2くちガスコンロに
作業スペース、収納を備え、
使い勝手は申し分なし。
背後に大きな窓があり、

お料理しながら振り返れば、
中庭と広い空が
目を楽しませてくれます。

リビングダイニングの隣は
約7帖の寝室で、
こちらも一人暮らしには
贅沢なほどの広さ。

ぜひ見てほしいのは、
寝室からリビングダイニングを
眺めたときの、ゆとりと開放感。
朝起きた瞬間にこの光景が
目に飛び込んでくるなんて、
ちょっと幸せすぎやしませんか。

水回りは、居室の壁の向こう側に。

コンパクトな空間に収まる
すっきりしたトイレ、

これでもかと棚が備わった
スタイリッシュで機能的な洗面、

「ここも一人で使っていいんですか」と
確認したくなるバスルーム。
はい、もちろん一人で
使っていいんですよ。

静かな環境、美しい建物、
ゆとりある空間、整った設備。

それらすべての恩恵を受けて
紡いでいく、穏やかな日々。

そんな一人暮らしを叶えたい人に
ぜひ出会ってほしいお部屋です。
いま募集中の物件一覧
お部屋探しに!今空いている物件だけを絞り込んで探せます
詳しくはこちら


