
幸せな住まいってこういうこと。北欧の住宅の快適性とデザインを鎌倉で。(神奈川県鎌倉市105㎡の賃貸物件)
北欧スタイルの家。
そう聞いて思い浮かぶのは
自然素材を使ったナチュラルな空間?
それとも柔らかな色使いの内装?

きっとどちらも正解なのですが、
北欧の住宅の最大の特徴は
表面的なデザインではなく「心地よさ」。

ずっとそこで過ごしたくなる
居心地のよさを追求した
副産物のひとつが
素敵なデザインなのではないかな。
そんな北欧スタイルの家を
体現した戸建てが鎌倉にあるんです。

周囲の自然に溶け込んだ、
ミニマルながらかわいいらしい外観。
ここはデンマークですと言われても
信じてしまいそうな光景だけど、鎌倉。
鶴岡八幡宮にほど近い
西御門エリアに建つお家です。

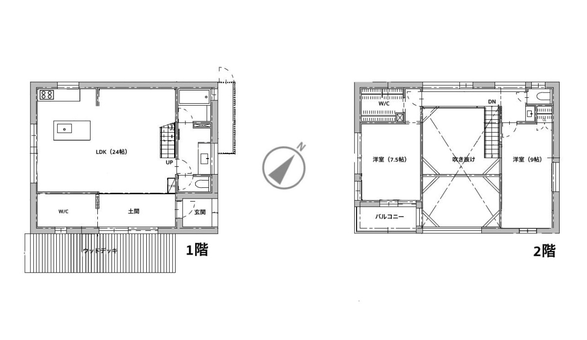
ゆとりある2LDKの戸建ては、
北欧ヴィンテージ家具の輸入販売で
知られるハルタ建築設計事務所
(現在の社名はJuuri(ユーリ)」
が設計を手がけた注文住宅。
同社が北欧建築から学んだ心地よさが
2フロアの隅々にまで息づいています。
それは、玄関を入った瞬間から。
扉を開けると、目の前に伸びる土間、
そしてダイナミックな吹き抜けと
24帖リビングからなる大空間。
開放的とは、まさにこのこと。

南側の壁に大きく開いた窓と
ハイサイドライトはもちろんのこと
トップライトからも光が注ぎ、
日中は照明いらずです。

これだけ開放的な空間だと
冬はお寒いんでしょう? などと思うなかれ、
断熱性と空調性能の高さこそが
北欧スタイルの家の真骨頂。
デンマーク製の断熱材で全体を覆い、
窓に木製サッシのトリプルガラスを
使用することで、
室内温度は年間を通して22度前後に。
さらに熱を再利用する熱交換式換気システムや
除湿型放射冷暖房のパネルヒーターが機能し、
エアコンやストーブなしで年中快適に
過ごすことができるのです。
冬も無垢床のリビングに寝転んで
吹き抜けを見上げたくなりますね。

一方で、奥のダイニング部分は
あえて天井を低く。
親密な雰囲気のなか
食事を楽しむことができます。

山の緑を切り取る窓と、
ルイス・ポールセンの照明。
完全に北欧、な美しい光景。
LDKになじむ木のキッチンは、
ステンレスの天板とIHコンロで
キリリと引き締まった印象に。
明るさもスペースも申し分なく、
快適にお料理できそうです。

続いてリビングイン階段で
2階へ上ると、

宙に浮かんだような廊下が。
壁側には壁一面の造作棚、
見上げればトップライト、

そして吹き抜けとハイサイドライト。
廊下に椅子を置いて
ちょっとした読書スペースに
するのもいいですね。
2階に2つある洋室のうち、
こちらは9帖のお部屋。
大きな窓があるのに加え、
室内窓は吹き抜けに面しています。

ウォークインクローゼットのある
7帖のお部屋は、風景を切り取る
絵画のような窓が最高のインテリアに。

バルコニーへ出ればすぐそこは山、

見下ろした先には、お庭!
そう、申し遅れましたがお庭があるのです。
陽当たりの良い南東向きの庭には、
オーナーが手塩にかけて育てた
たくさんの植物が植わっています。
ロシアンオリーブ、フェイジョア、
レモン、マスカット、キウイ、
ブルーベリーなどなど。

さらに、敷地内には
オーナー手作りの鶏小屋も。
ここで鶏を育てれば、
フレッシュなハーブや果物だけでなく
採れたての卵まで
食卓に並べられるってことですよね!?
鶏飼育可のお家、恐れ入りました。
ちなみにわんこも小型犬ならOKですよ。

水回りは階段脇の
アンティークドアの奥に。
タイル張りのバスルームと、

すっきりした洗面、トイレ。
うれしいことに、2階にも
トイレと洗面があります。
それだって快適な要素のひとつ。

自然光をたっぷり取り込む
いつも適温に保たれた大空間と、

山の緑、オーナーこだわりの庭。
家族やペット(鶏も)と過ごす
穏やかな日々。
ここでの暮らしを思い描くと、
北欧の国々の幸福度が高い理由が
わかる気がするのでした。
そう聞いて思い浮かぶのは
自然素材を使ったナチュラルな空間?
それとも柔らかな色使いの内装?

きっとどちらも正解なのですが、
北欧の住宅の最大の特徴は
表面的なデザインではなく「心地よさ」。

ずっとそこで過ごしたくなる
居心地のよさを追求した
副産物のひとつが
素敵なデザインなのではないかな。
そんな北欧スタイルの家を
体現した戸建てが鎌倉にあるんです。

周囲の自然に溶け込んだ、
ミニマルながらかわいいらしい外観。
ここはデンマークですと言われても
信じてしまいそうな光景だけど、鎌倉。
鶴岡八幡宮にほど近い
西御門エリアに建つお家です。

ゆとりある2LDKの戸建ては、
北欧ヴィンテージ家具の輸入販売で
知られるハルタ建築設計事務所
(現在の社名はJuuri(ユーリ)」
が設計を手がけた注文住宅。
同社が北欧建築から学んだ心地よさが
2フロアの隅々にまで息づいています。

それは、玄関を入った瞬間から。
扉を開けると、目の前に伸びる土間、
そしてダイナミックな吹き抜けと
24帖リビングからなる大空間。
開放的とは、まさにこのこと。

南側の壁に大きく開いた窓と
ハイサイドライトはもちろんのこと
トップライトからも光が注ぎ、
日中は照明いらずです。

これだけ開放的な空間だと
冬はお寒いんでしょう? などと思うなかれ、
断熱性と空調性能の高さこそが
北欧スタイルの家の真骨頂。

デンマーク製の断熱材で全体を覆い、
窓に木製サッシのトリプルガラスを
使用することで、
室内温度は年間を通して22度前後に。
さらに熱を再利用する熱交換式換気システムや
除湿型放射冷暖房のパネルヒーターが機能し、
エアコンやストーブなしで年中快適に
過ごすことができるのです。
冬も無垢床のリビングに寝転んで
吹き抜けを見上げたくなりますね。

一方で、奥のダイニング部分は
あえて天井を低く。
親密な雰囲気のなか
食事を楽しむことができます。

山の緑を切り取る窓と、
ルイス・ポールセンの照明。
完全に北欧、な美しい光景。

LDKになじむ木のキッチンは、
ステンレスの天板とIHコンロで
キリリと引き締まった印象に。
明るさもスペースも申し分なく、
快適にお料理できそうです。

続いてリビングイン階段で
2階へ上ると、

宙に浮かんだような廊下が。
壁側には壁一面の造作棚、
見上げればトップライト、

そして吹き抜けとハイサイドライト。
廊下に椅子を置いて
ちょっとした読書スペースに
するのもいいですね。

2階に2つある洋室のうち、
こちらは9帖のお部屋。
大きな窓があるのに加え、
室内窓は吹き抜けに面しています。

ウォークインクローゼットのある
7帖のお部屋は、風景を切り取る
絵画のような窓が最高のインテリアに。

バルコニーへ出ればすぐそこは山、

見下ろした先には、お庭!
そう、申し遅れましたがお庭があるのです。

陽当たりの良い南東向きの庭には、
オーナーが手塩にかけて育てた
たくさんの植物が植わっています。
ロシアンオリーブ、フェイジョア、
レモン、マスカット、キウイ、
ブルーベリーなどなど。

さらに、敷地内には
オーナー手作りの鶏小屋も。
ここで鶏を育てれば、
フレッシュなハーブや果物だけでなく
採れたての卵まで
食卓に並べられるってことですよね!?
鶏飼育可のお家、恐れ入りました。
ちなみにわんこも小型犬ならOKですよ。

水回りは階段脇の
アンティークドアの奥に。
タイル張りのバスルームと、

すっきりした洗面、トイレ。

うれしいことに、2階にも
トイレと洗面があります。
それだって快適な要素のひとつ。

自然光をたっぷり取り込む
いつも適温に保たれた大空間と、

山の緑、オーナーこだわりの庭。
家族やペット(鶏も)と過ごす
穏やかな日々。
ここでの暮らしを思い描くと、
北欧の国々の幸福度が高い理由が
わかる気がするのでした。
いま募集中の物件一覧
お部屋探しに!今空いている物件だけを絞り込んで探せます
詳しくはこちら


