
モダン建築に住む。しかも文化財指定の異人館に、賃貸で! (兵庫県神戸市161㎡の賃貸物件)
一瞬、目を疑ってしまいました。
神戸・諏訪山にある
文化財指定の異人館に
賃貸で住めるなんて。

つやつや輝く飴色の床板に、
どっしりとした重厚な建具たち。

「ここに住めるって本当ですか?」と
クラシックで気品あふれる
佇まいに見とれていましたら、

象徴的な丸窓に
見覚えがあることに気づいたんです。
素敵すぎて忘れたくても
忘れられないですからね。
<https://bukkenfan.jp/e/10981812998644960718>
こちらの洋館、
やはり以前に物件ファンでも
ご紹介したことがありました。
そのときは売買で募集されていたのが、
古いものに理解のある
アンティークショップの
オーナーさんの手に渡り、
丁寧な改修を経て息を吹き返したそう。
そして、このたび賃貸物件として
ふたたびお目見えしたようです。
新たなオーナーさんが
改修してくださったおかげで、
外観もご覧の通り。
思わず立ち止まって
見とれてしまう美しさです。

なめらかな曲線を描く
階段のアプローチを上り、

家の前でまたうっとり。
細やかな意匠の玄関扉や
丸窓はそのままに、
外壁をきれいに塗り替えて
くださったのですね。
玄関ホールも見違えるよう!
いや、もともと素敵だったのですが、
まさに「息を吹き返した」印象です。
作家の田辺聖子さんが
諏訪山の洋館で暮らした時代よりもさらに昔、
この家が建てられた
昭和初期にタイムスリップしたような…。

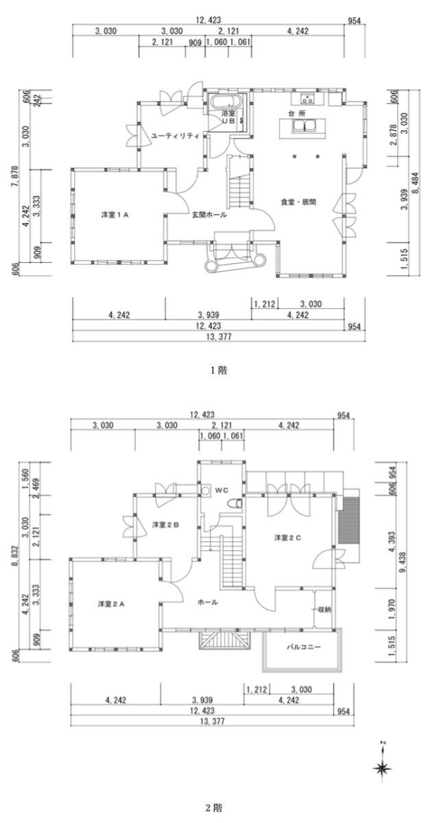
ここで間取り図を。
1階にはいわゆるLDKと洋室のほかに
ユーティリティルームと浴室、
2階には洋室が3部屋あります。
最初にこの家に住んだのは
外国人のご家族だったのかな、
それとも田辺さんのような
日本人の作家だったのかな、などと
妄想が捗りますね。

こちらはLDKのリビング的なスペース。
例の丸窓のある出っ張った空間には
ダイニングとは別のテーブルと椅子を置いて
くつろぎスペースにしたい。
なぜなら、ここから夕日が
眺められるご褒美付きだから!

奥のキッチン側のスペースは
機能的にも一部を改修してくださったそう。

キッチンはシンク側が
アイランドになったII型。
コンロはIHです。
1階の洋室はかなりゆったり。
床材は当時のままなのでしょうか、
何も置いていなくても絵になります。

隣のユーティリティルームに至っては
建具も当時のままなのでは…?
天井にも意匠性があって
どこも抜かりありません。

バスルームへは、奥に見える
隅切りのアーチをくぐって。
浴室も改修してくださったのでしょう、
広くてきれいなお風呂、うれしいな。
続いて階段で2階へ向かうと、

階段の途中の踊り場にトイレと洗面。

そして、階段を上った先にあるホールは
この家のいちばんの特等席です。
壁一面の開口に連なる木製建具、
それらの外に広がる神戸の景色。
ここに座って
夕日と茜色に染まった街を
眺めていたら、
なんだか無性に
泣きたくなってしまいそう。

宝石を散りばめたような夜景だって
毎晩のように眺めても
いつまでも飽きない自信がある。

2階の3つの洋室は家族の個室に
なるのだろうけど、

どの部屋も少しずつ
ディテールや建具が違って
どれも素敵。
だから絶対に部屋の取り合いで
ケンカにならない、
それもこの家のいいところですね。

神戸の街を一望する白亜の洋館に
現実的な家賃で住める、
またとない機会。
この家の価値を理解し、
大切に住み継いでくれる方と
どうか出会ってくれますように。
神戸・諏訪山にある
文化財指定の異人館に
賃貸で住めるなんて。

つやつや輝く飴色の床板に、
どっしりとした重厚な建具たち。

「ここに住めるって本当ですか?」と
クラシックで気品あふれる
佇まいに見とれていましたら、

象徴的な丸窓に
見覚えがあることに気づいたんです。
素敵すぎて忘れたくても
忘れられないですからね。
<https://bukkenfan.jp/e/10981812998644960718>
こちらの洋館、
やはり以前に物件ファンでも
ご紹介したことがありました。
そのときは売買で募集されていたのが、
古いものに理解のある
アンティークショップの
オーナーさんの手に渡り、
丁寧な改修を経て息を吹き返したそう。
そして、このたび賃貸物件として
ふたたびお目見えしたようです。

新たなオーナーさんが
改修してくださったおかげで、
外観もご覧の通り。
思わず立ち止まって
見とれてしまう美しさです。

なめらかな曲線を描く
階段のアプローチを上り、

家の前でまたうっとり。
細やかな意匠の玄関扉や
丸窓はそのままに、
外壁をきれいに塗り替えて
くださったのですね。

玄関ホールも見違えるよう!
いや、もともと素敵だったのですが、
まさに「息を吹き返した」印象です。
作家の田辺聖子さんが
諏訪山の洋館で暮らした時代よりもさらに昔、
この家が建てられた
昭和初期にタイムスリップしたような…。

ここで間取り図を。
1階にはいわゆるLDKと洋室のほかに
ユーティリティルームと浴室、
2階には洋室が3部屋あります。
最初にこの家に住んだのは
外国人のご家族だったのかな、
それとも田辺さんのような
日本人の作家だったのかな、などと
妄想が捗りますね。

こちらはLDKのリビング的なスペース。
例の丸窓のある出っ張った空間には
ダイニングとは別のテーブルと椅子を置いて
くつろぎスペースにしたい。

なぜなら、ここから夕日が
眺められるご褒美付きだから!

奥のキッチン側のスペースは
機能的にも一部を改修してくださったそう。

キッチンはシンク側が
アイランドになったII型。
コンロはIHです。

1階の洋室はかなりゆったり。
床材は当時のままなのでしょうか、
何も置いていなくても絵になります。

隣のユーティリティルームに至っては
建具も当時のままなのでは…?
天井にも意匠性があって
どこも抜かりありません。

バスルームへは、奥に見える
隅切りのアーチをくぐって。

浴室も改修してくださったのでしょう、
広くてきれいなお風呂、うれしいな。
続いて階段で2階へ向かうと、

階段の途中の踊り場にトイレと洗面。

そして、階段を上った先にあるホールは
この家のいちばんの特等席です。
壁一面の開口に連なる木製建具、
それらの外に広がる神戸の景色。

ここに座って
夕日と茜色に染まった街を
眺めていたら、
なんだか無性に
泣きたくなってしまいそう。

宝石を散りばめたような夜景だって
毎晩のように眺めても
いつまでも飽きない自信がある。

2階の3つの洋室は家族の個室に
なるのだろうけど、

どの部屋も少しずつ
ディテールや建具が違って
どれも素敵。

だから絶対に部屋の取り合いで
ケンカにならない、
それもこの家のいいところですね。

神戸の街を一望する白亜の洋館に
現実的な家賃で住める、
またとない機会。
この家の価値を理解し、
大切に住み継いでくれる方と
どうか出会ってくれますように。
いま募集中の物件一覧
お部屋探しに!今空いている物件だけを絞り込んで探せます
詳しくはこちら


