
織屋付き町家が五棟。手を入れるほど、自分の色に染まる家(京都市北区74㎡〜の売買物件)
通りに面して、ずらりと並ぶ五つの町家。

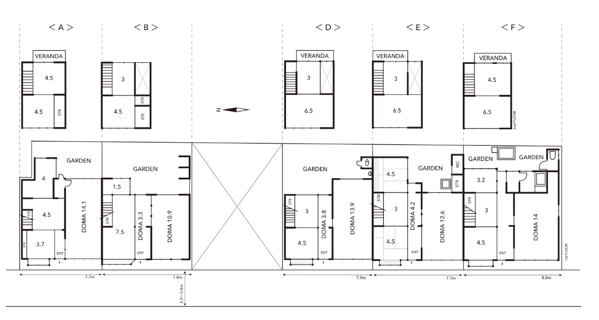
A、B、D、E、F。
不思議と「Cがない」ことさえ、
この場所の個性に思えてきます。

それぞれに織屋を備えた、
いわゆる織屋建て。
西陣織のまち、
紫野らしい職住一体のかたちです。
こちらの物件は、
五棟すべて、ほぼ未改装。

中に入ると、床下の土が見えるような、
まさに「はじまりの状態」がここに。
整えられていないからこそ、
想像がどこまでも広がっていきます。

まずはA号棟から。

5Kに織屋、そして庭。
通り土間をまっすぐ抜けると、
奥に光が落ちる火袋。

その先には庭。
町家らしい奥行きのある構成が、
きちんと残っています。

織屋は天井が高く、
空間としてのポテンシャルも十分。

住まいとして整えるのか、
仕事場として使うのか。
最初の一歩を考える時間も楽しそうです。

続いてB号棟。
少しコンパクトな4Kですが、
その分、まとまりがいい印象。

織屋と居住空間の距離感も近く、
日々の動線をシンプルに
組み立てられそうです。

屋外とのつながりも感じやすく、
室内が明るいのも美点。

D号棟も4K。
間取りは似ていても、
光の入り方や抜け方で印象は変わります。

火袋からの光がふわっと落ちてきて、
少し幻想的。
古い構造がそのまま残っているからこそ、
光の動きがよく見えるのかもしれません。

E号棟は再び5K。
部屋数の余白をどう使うか、
考えがいがあります。

織屋と合わせて、
趣味の空間を広げてもいいし、
店舗併用という選択も現実的に見えてきます。

広い間口を活かして、
外との関係をどうつくるかも
ポイントになりそうです。

最後にF号棟。

同じく5K+織屋+庭。
この並びの中で見ていくと、
それぞれが似ているようで
違うことに気づきます。

梁の表情、建具の残り方、空気の抜け方。

細部に宿る個性を拾い上げていく作業は、
まるで古い布をほどいて、
新しいかたちに編み直すよう。

そして、この五棟をまとめて見たときに、
ふと感じること。
これは、一軒を選ぶ話でありながら、
同時に場所を選ぶ話でもあるということ。

西陣織の歴史を背負った紫野という土地。
近くには金閣寺や北野天満宮、大徳寺。
少し歩けば、町家を活かしたカフェや
商店が点在しています。
観光地のにぎわいと、日常の落ち着きが、
ほどよく混ざり合うエリアです。
大型スーパーや病院も徒歩圏内にあり、
暮らしの基盤もきちんと整っている。

だからこそ、この未改装の状態が、
ただの「手のかかる物件」ではなく
「これからをつくる余白」
として見えてきます。

すぐに完成された心地よさではなく、
手を入れながら、
自分の暮らしを編んでいく感覚。
織屋で何をするのか。
土間をどう使うのか。
庭とどう付き合うのか。
問いがそのまま、暮らしの輪郭になっていく。

五棟並んだこの場所は、
きっとそれぞれに違う答えを
持つことになるはずです。

どの一棟にも、
まだ名前のない可能性が
残っているのかなと。
期待に心が躍ります。

A、B、D、E、F。
不思議と「Cがない」ことさえ、
この場所の個性に思えてきます。

それぞれに織屋を備えた、
いわゆる織屋建て。
西陣織のまち、
紫野らしい職住一体のかたちです。
こちらの物件は、
五棟すべて、ほぼ未改装。

中に入ると、床下の土が見えるような、
まさに「はじまりの状態」がここに。
整えられていないからこそ、
想像がどこまでも広がっていきます。

まずはA号棟から。

5Kに織屋、そして庭。
通り土間をまっすぐ抜けると、
奥に光が落ちる火袋。

その先には庭。
町家らしい奥行きのある構成が、
きちんと残っています。

織屋は天井が高く、
空間としてのポテンシャルも十分。

住まいとして整えるのか、
仕事場として使うのか。
最初の一歩を考える時間も楽しそうです。

続いてB号棟。
少しコンパクトな4Kですが、
その分、まとまりがいい印象。

織屋と居住空間の距離感も近く、
日々の動線をシンプルに
組み立てられそうです。

屋外とのつながりも感じやすく、
室内が明るいのも美点。

D号棟も4K。
間取りは似ていても、
光の入り方や抜け方で印象は変わります。

火袋からの光がふわっと落ちてきて、
少し幻想的。
古い構造がそのまま残っているからこそ、
光の動きがよく見えるのかもしれません。

E号棟は再び5K。
部屋数の余白をどう使うか、
考えがいがあります。

織屋と合わせて、
趣味の空間を広げてもいいし、
店舗併用という選択も現実的に見えてきます。

広い間口を活かして、
外との関係をどうつくるかも
ポイントになりそうです。

最後にF号棟。

同じく5K+織屋+庭。
この並びの中で見ていくと、
それぞれが似ているようで
違うことに気づきます。

梁の表情、建具の残り方、空気の抜け方。

細部に宿る個性を拾い上げていく作業は、
まるで古い布をほどいて、
新しいかたちに編み直すよう。

そして、この五棟をまとめて見たときに、
ふと感じること。
これは、一軒を選ぶ話でありながら、
同時に場所を選ぶ話でもあるということ。

西陣織の歴史を背負った紫野という土地。
近くには金閣寺や北野天満宮、大徳寺。
少し歩けば、町家を活かしたカフェや
商店が点在しています。
観光地のにぎわいと、日常の落ち着きが、
ほどよく混ざり合うエリアです。
大型スーパーや病院も徒歩圏内にあり、
暮らしの基盤もきちんと整っている。

だからこそ、この未改装の状態が、
ただの「手のかかる物件」ではなく
「これからをつくる余白」
として見えてきます。

すぐに完成された心地よさではなく、
手を入れながら、
自分の暮らしを編んでいく感覚。
織屋で何をするのか。
土間をどう使うのか。
庭とどう付き合うのか。
問いがそのまま、暮らしの輪郭になっていく。

五棟並んだこの場所は、
きっとそれぞれに違う答えを
持つことになるはずです。

どの一棟にも、
まだ名前のない可能性が
残っているのかなと。
期待に心が躍ります。
いま募集中の物件一覧
お部屋探しに!今空いている物件だけを絞り込んで探せます
詳しくはこちら


