
畑の隣で、本と猫と。余白ごと暮らす無垢の平屋 (兵庫県加古郡69.56㎡の売買物件)
この家に似合う暮らしって、どんなだろう。
便利さや効率とは、少し距離を置いて。
代わりに、手ざわりや
季節の移ろいを受け取りながら
ゆっくり整えていくような日々。


派手さはないけれど、
ここでの時間は、
少しだけ丁寧になる気がします。

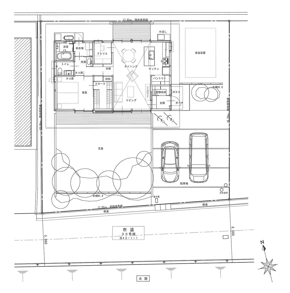
2LDKの平屋。
リビングを中心に、 寝室と、もうひとつの個室。
この「もうひとつ」が、 ちょっといい余白になっています。
ワークスペースにするのか、 アトリエにするのか。
使い方は決めきらないくらいが、
ちょうどいいのかもしれません。

無垢材の床に、木の天井。
視界に入るもののほとんどがやわらかくて、
それだけで少し気が抜けるような空間です。

本を並べていくうちに、 この家らしさができていく。
そんな使い方が似合いそうです。


特別な何かがあるわけじゃないけど、 だからこそ ずっと見ていられるような景色です。
気づいたら、何もせずに眺めてる。
そんな時間が増えそう。

一人で使うには少し余裕があって、
二人で立つと、ちょうどいい距離感。


人の動線と、猫の動線が 自然に交差する感じ。
気づいたら、同じ空間にいる。
そんな時間の重なり方が似合います。

こもって作業する日もあれば、 ただ物を置くだけの日もあるかもしれない。
でも、その余白があることで、
暮らしに少し幅が出る気がします。

余計なものは置かず、
きちんと休むための場所として。






外でも中でもない、あいまいな場所。


手を加えすぎなくても、
そのままで十分成立している感じ。


何かを足していくというより、
少しずつ削ぎ落としていく
イメージのほうが近い気がします。
2LDKというサイズ感もあって、
にぎやかに、というよりは
ふたりでゆっくり過ごす日々にしっくりくる。

そんな時間を重ねながら、
暮らしのかたちを整えていく。

文・ほしりょうこ 散歩とビールと読書が好きな、元リフォーム屋さん。19年で9回の引越しを経験。もっぱら東京の西側にいます。 @hs_ryk
いま募集中の物件一覧
お部屋探しに!今空いている物件だけを絞り込んで探せます
詳しくはこちら


