
海近、日当たり良好。ごきげんな部屋で始める憧れの湘南暮らし (神奈川県藤沢市37㎡の賃貸物件)
大きな窓から差し込む陽の光。
味わい深い表情の無垢床に
くっきりした輪郭の陽だまりができて
見るからに居心地が良さそうです。

最寄り駅は、鵠沼海岸。
いかにも湘南らしい
白いラップサイディングが印象的な
建物の1階にお部屋はあります。

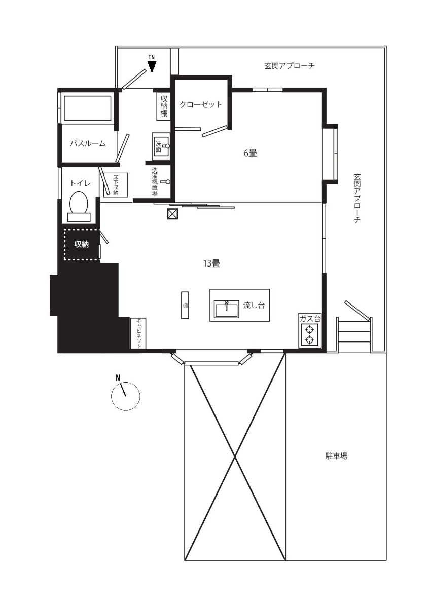
1DKのような間取りは、
のびのびした一人暮らしにぴったり。
1階のお部屋ですが、
居室をぐるりと庭が囲み、
ふつうの集合住宅の1階とは
少し違った感覚で暮らせそうです。

お部屋までのアプローチもユニークで、
かわいらしい門扉を開けると
細長い庭が奥のほうまで続きます。
ここをずんずんと進んで、
突き当りを曲がったところが玄関。
エメラルドグリーンの玄関ドアは
アンティークだそうですよ。

お部屋に入って
水回りが配された廊下を抜けると、
光がめぐる居室に到着!

まず目を引くのは、
冒頭でも触れた味わい深い無垢床。
物件のオーナーさんは
この無垢床に惚れ込み、
床を活かしたリノベを計画したのだそう。
部屋の設えにはグレーや白を多用し、
床以外に木目を極力取り入れていないのは
そのためでしょう。
逆側から居室の入口付近を見ると
こんな感じ。
床に負けないこのお部屋の顔のひとつが
写真手前のキッチンカウンターです。

ご覧のとおりコンロと作業台が
分かれているので、
コンロでささっとつくった炒め物を
カウンターにサーブして、
そのまま「いただきます」
なんてことができてしまいます。

もちろん食事のほかに
コーヒーやお酒を楽しむ場所にも。
出窓に並べたお気に入りの小物たちと
景色を眺めながらリラックス。
そんな時間が楽しみになりそうです。
ちなみに、
キッチンの上のかっこいいランプは、
オーナーがネットで探し続けて
ゲットしたものだそう。
ランプをはじめ、室内の家具は
希望すれば残置物として
貸与してくれるんですって!
そりゃあもう貸していただきますとも。

隣の6帖は、ベッドスペースにどうぞ。
引き戸を閉めれば独立した
寝室になりますし、
開け放てば大きなワンルームにも。

備え付けの収納は、
既存の扉に増し貼りをして
内装の統一感を図ったそう。
手前のかわいいキャビネットも
借りることができるのかな、
そうだったらうれしいな。
タイル貼りのかわいらしい浴室。
レインシャワーが設置されているのは、
湘南でサーフィンを楽しむ生活を
想定してのことかもしれませんね。

洗面はアーチの開口から
居室を出てすぐのところにあり、
向かいのドアはトイレ。

そのトイレも設備を一新。
建具や取っ手がいちいち素敵なのも
見逃せないポイントです。
近隣には、地元で人気の蕎麦屋や
アイスクリーム屋さんなどが点在。
海までも歩いて7分ほどなので、
サーフィンやビーチ散策を
日課にできてしまいます。
波乗りをする人はもちろん、
マリンスポーツはしないけれど
なんとなく海の近くの心地よい
住まいを探していたという人も。
湘南暮らしの第一歩として
おすすめしたいお部屋です。
味わい深い表情の無垢床に
くっきりした輪郭の陽だまりができて
見るからに居心地が良さそうです。

最寄り駅は、鵠沼海岸。
いかにも湘南らしい
白いラップサイディングが印象的な
建物の1階にお部屋はあります。

1DKのような間取りは、
のびのびした一人暮らしにぴったり。
1階のお部屋ですが、
居室をぐるりと庭が囲み、
ふつうの集合住宅の1階とは
少し違った感覚で暮らせそうです。

お部屋までのアプローチもユニークで、
かわいらしい門扉を開けると
細長い庭が奥のほうまで続きます。
ここをずんずんと進んで、

突き当りを曲がったところが玄関。
エメラルドグリーンの玄関ドアは
アンティークだそうですよ。

お部屋に入って
水回りが配された廊下を抜けると、
光がめぐる居室に到着!

まず目を引くのは、
冒頭でも触れた味わい深い無垢床。
物件のオーナーさんは
この無垢床に惚れ込み、
床を活かしたリノベを計画したのだそう。
部屋の設えにはグレーや白を多用し、
床以外に木目を極力取り入れていないのは
そのためでしょう。

逆側から居室の入口付近を見ると
こんな感じ。
床に負けないこのお部屋の顔のひとつが
写真手前のキッチンカウンターです。

ご覧のとおりコンロと作業台が
分かれているので、
コンロでささっとつくった炒め物を
カウンターにサーブして、
そのまま「いただきます」
なんてことができてしまいます。

もちろん食事のほかに
コーヒーやお酒を楽しむ場所にも。
出窓に並べたお気に入りの小物たちと
景色を眺めながらリラックス。
そんな時間が楽しみになりそうです。
ちなみに、
キッチンの上のかっこいいランプは、
オーナーがネットで探し続けて
ゲットしたものだそう。

ランプをはじめ、室内の家具は
希望すれば残置物として
貸与してくれるんですって!
そりゃあもう貸していただきますとも。

隣の6帖は、ベッドスペースにどうぞ。
引き戸を閉めれば独立した
寝室になりますし、
開け放てば大きなワンルームにも。

備え付けの収納は、
既存の扉に増し貼りをして
内装の統一感を図ったそう。
手前のかわいいキャビネットも
借りることができるのかな、
そうだったらうれしいな。

タイル貼りのかわいらしい浴室。
レインシャワーが設置されているのは、
湘南でサーフィンを楽しむ生活を
想定してのことかもしれませんね。

洗面はアーチの開口から
居室を出てすぐのところにあり、
向かいのドアはトイレ。

そのトイレも設備を一新。
建具や取っ手がいちいち素敵なのも
見逃せないポイントです。

近隣には、地元で人気の蕎麦屋や
アイスクリーム屋さんなどが点在。
海までも歩いて7分ほどなので、
サーフィンやビーチ散策を
日課にできてしまいます。
波乗りをする人はもちろん、
マリンスポーツはしないけれど
なんとなく海の近くの心地よい
住まいを探していたという人も。
湘南暮らしの第一歩として
おすすめしたいお部屋です。
いま募集中の物件一覧
お部屋探しに!今空いている物件だけを絞り込んで探せます
詳しくはこちら


