
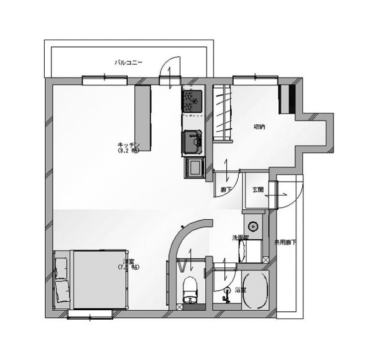
団地の扉の先に現れる、1LDKサイズのヨーロッパ (兵庫県神戸市41㎡の売買物件)
玄関の扉を開けた瞬間、
ちょっとだけ頭が混乱しました。


どこを切り取っても、
トーンの揃った美しさがあります。

団地という日常の中に、
少しだけ非日常を差し込んだような住まいです。












特別すぎないけれど、 ちゃんと気分が上がる。 そんな「ちょうどいい非日常」が、 ここにはありました。
文・ほしりょうこ 散歩とビールと読書が好きな、元リフォーム屋さん。19年で9回の引越しを経験。もっぱら東京の西側にいます。 @hs_ryk
いま募集中の物件一覧
お部屋探しに!今空いている物件だけを絞り込んで探せます
詳しくはこちら


