
梅田から1時間。のどかな里山にたたずむ、建築と自然がつながる家 (大阪府箕面市59㎡の売買物件)
「里」と「山」の中間あたり、
人と自然が共存して暮らす「里山」。
手の届く距離に豊かな自然があって、
鳥の鳴き声や虫の音がBGMで……
想像しただけでうっとりしますが、
なんだかんだで不便なんでしょう?
と思ってしまいますよね。

今回ご紹介する物件のある箕面森町は、
“水と緑の健康都市”としてつくられた
自然と共生する郊外型ニュータウンで、
まさに理想的な里山暮らしが叶う場所。
いやいや、箕面の山のほうって
都心から遠いやん、などと思うなかれ、
2年前の北大阪急行の延伸で
ぐっと身近になりました。
なんと、梅田からのアクセスは
車でも電車でも1時間前後。
そんな里山の裾野に、
建築家によって建てられた
週末住宅がたたずんでいます。

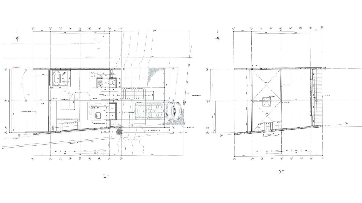
1階は、土間のLDKと小上がり、
そして水回り。
2階にはロフトと個室を備えた
全面ガラス張りの建物です。

そこかしこに配された
ガラス窓と抜き抜けのおかげで、
玄関ドアを開けると、この抜け感。
建物に入った瞬間から
“里山ビュー”が始まっているのです。
LDKへ進むと、より迫る里山の景色。
玄関から続くモルタル床の静謐さと、

床がそのまま立ち上がったような
コンクリート製のキッチンにも
ほれぼれしてしまいます。
モルタルの床にガラス張り、
吹き抜け…となれば
冬場の寒さが心配なところですが、
土間には温水床暖房が仕込まれ、

キッチン前には
ほっこりした印象の小上がりスペースも。
小上がりには囲炉裏が備わっていて
寒い季節もぬくぬくと
過ごすことができそうです。
窓の外にはテラスがあり、

その奥には
もうひとつ建物が建ちそうなくらい
大きな庭、

庭の周囲は、もう山!
ほとんど山の一部のような庭で
BBQや焚き火、菜園など、
都心ではできないことを
のびのびと満喫できてしまいます。
庭には物置小屋もありますから、
庭いじりや庭遊びに
必要な道具はこちらへ。

ちなみに、バスルームも
里山に面していて、やはりガラス張り。
これはぜひとも朝やお昼間の
バスタイムを週末の楽しみにしたい…!

トイレは里山側ではありませんが
光を取り込む窓があり、
向かいのシンプルな洗面と同室。
水回りのスペースや眺望は
バスルームに全振りといったところ。
でもトイレも洗面も快適そうです。

続いて
鉄骨のスケルトン階段を上ると、

フリースペースと収納。
読書スペースにしてもいいし、
仕切りになる家具を置けば
子ども部屋や客間としても
使えるかもしれません。
そして、この家唯一の個室は主寝室に。

窓の外には
箕面の自然と大阪平野を見下ろす
バルコニーが広がっています。
起床即この眺望が楽しめるとは、
なんという眼福…!

青空と里山の緑にこの上なく映える、
建築家に建てられたお家。
週末を過ごすセカンドハウス
として理想的なのはもちろん、
日常生活のための住居にもぜひ。
梅田から1時間の里山で、
日々自然に帰っていく暮らしを
実現してはいかがでしょうか。
人と自然が共存して暮らす「里山」。
手の届く距離に豊かな自然があって、
鳥の鳴き声や虫の音がBGMで……
想像しただけでうっとりしますが、
なんだかんだで不便なんでしょう?
と思ってしまいますよね。

今回ご紹介する物件のある箕面森町は、
“水と緑の健康都市”としてつくられた
自然と共生する郊外型ニュータウンで、
まさに理想的な里山暮らしが叶う場所。
いやいや、箕面の山のほうって
都心から遠いやん、などと思うなかれ、
2年前の北大阪急行の延伸で
ぐっと身近になりました。
なんと、梅田からのアクセスは
車でも電車でも1時間前後。
そんな里山の裾野に、
建築家によって建てられた
週末住宅がたたずんでいます。

1階は、土間のLDKと小上がり、
そして水回り。
2階にはロフトと個室を備えた
全面ガラス張りの建物です。

そこかしこに配された
ガラス窓と抜き抜けのおかげで、
玄関ドアを開けると、この抜け感。
建物に入った瞬間から
“里山ビュー”が始まっているのです。

LDKへ進むと、より迫る里山の景色。
玄関から続くモルタル床の静謐さと、

床がそのまま立ち上がったような
コンクリート製のキッチンにも
ほれぼれしてしまいます。
モルタルの床にガラス張り、
吹き抜け…となれば
冬場の寒さが心配なところですが、
土間には温水床暖房が仕込まれ、

キッチン前には
ほっこりした印象の小上がりスペースも。
小上がりには囲炉裏が備わっていて
寒い季節もぬくぬくと
過ごすことができそうです。

窓の外にはテラスがあり、

その奥には
もうひとつ建物が建ちそうなくらい
大きな庭、

庭の周囲は、もう山!
ほとんど山の一部のような庭で
BBQや焚き火、菜園など、
都心ではできないことを
のびのびと満喫できてしまいます。

庭には物置小屋もありますから、
庭いじりや庭遊びに
必要な道具はこちらへ。

ちなみに、バスルームも
里山に面していて、やはりガラス張り。
これはぜひとも朝やお昼間の
バスタイムを週末の楽しみにしたい…!

トイレは里山側ではありませんが
光を取り込む窓があり、

向かいのシンプルな洗面と同室。
水回りのスペースや眺望は
バスルームに全振りといったところ。
でもトイレも洗面も快適そうです。

続いて
鉄骨のスケルトン階段を上ると、

フリースペースと収納。
読書スペースにしてもいいし、
仕切りになる家具を置けば
子ども部屋や客間としても
使えるかもしれません。

そして、この家唯一の個室は主寝室に。

窓の外には
箕面の自然と大阪平野を見下ろす
バルコニーが広がっています。
起床即この眺望が楽しめるとは、
なんという眼福…!

青空と里山の緑にこの上なく映える、
建築家に建てられたお家。
週末を過ごすセカンドハウス
として理想的なのはもちろん、
日常生活のための住居にもぜひ。
梅田から1時間の里山で、
日々自然に帰っていく暮らしを
実現してはいかがでしょうか。
いま募集中の物件一覧
お部屋探しに!今空いている物件だけを絞り込んで探せます
詳しくはこちら


