
坪庭を眺め、湯に浸かる。町家本来の表情を取り戻した京町家。(京都市上京区91㎡の売買物件)
いっときは現代風に改修された建物を、 あらためて本来の姿へと立ち返らせる。
そんな丁寧な改修が施された、
尊い一軒です。

長い年月のなかで、 時代に合わせて 外壁はサイディングに 窓はアルミサッシに… いわば、現代仕様へと 書き換えられてきた建物でした。
ですが2026年、
「町家本来の表情を取り戻すこと」を
目的に、その佇まいが丁寧に
呼び戻されています。

木製の格子に硝子戸、 そして厨子二階の虫籠窓。
まさに歴史的なのだけど、 カステラみたいでどこかかわいい。
ここがお家だと思うと、
すでにトキメキが止まらないのですが…!


広さがあり、
靴のコレクションを並べたり、
自転車を置いたりと、
使い方の想像が膨らみます。



生活の場でありながら、 自然と所作が静かになるような面持ち。
畳の上を歩く音まで、
少し控えめになりそうです。

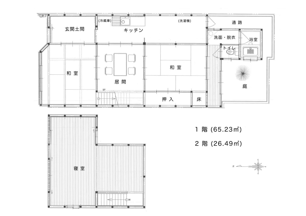
一階には
京間サイズの六畳が二間あり、
その間に板の間を一枚挟むことで、
暮らしに緩やかなメリハリが生まれています。

キッチンに面しているので 配膳もしやすいです。
奥の窓から届く
やわらかな光も心地よいですね。



作業スペースもしっかり確保されています。
吹き抜けと明るい天井板、 そして天窓のおかげで 印象はとても明るいです。
キッチンに並んで洗濯機置き場があり、
その奥には庭につながる扉が。
水回り、そして
洗濯物を干しに行く動線が
スムーズに確保されています。

「町家本来の表情」を、 きちんと今に残しています。
縦方向に抜けることで、
光と風が奥まで
気持ちよく通り抜けていきます。


静かに没頭する書斎にいかがでしょうか。

それが、この坪庭。

石、瓦、苔で構成された庭は、 川のようにも、海のようにも見立てられます。
ここで日がな一日、
読書して過ごしたいなあ!



もはや住まいというより、滞在です。


やわらかく、
落ち着いた空間に仕上がっています。








おこもり感覚になれて、
リラックスして眠れる寝室です。





文・戸田江美 @530e
1991年生まれ。デザイナー。おばあちゃんの仕事を継いで荒川区のマンションの大家をしている。落語が好き。
いま募集中の物件一覧
お部屋探しに!今空いている物件だけを絞り込んで探せます
詳しくはこちら


