
100年の、その先を営む。(京都市右京区42㎡の賃貸物件)
100年。
ここに立つと、その時間を
数字ではなく、
体で理解することになります。

それは構造部から。

それは壁から。

そして、新しい空気を纏った部屋からも。
幾度となく重ねられてきた改修を、
一度すべて落とす。
そうして現れたのは、
当時のままの土壁でした。
いまの技術では再現できない、
町家がまだ“価値”として
語られていなかった頃だった頃の姿。
それをただ保存するのではなく、
現代の暮らしに耐えうるかたちで
丁寧に、正面から戻していく。
そんな、強い意志と愛情をもった
プロジェクトに恵まれた、
贅沢な京町家のご紹介です。
場所は京都・西院。
駅を降りると、通勤や通学の慌ただしさに
観光客の気配が自然に混ざり合う街。
河原町へは阪急電車で約6分。
大阪・梅田へも一本でつながる利便性。
嵐電や市バスも行き交い、
「暮らす京都」と「訪れる京都」が
無理なく重なっている場所です。

少し歩くと、
町家を活かした飲食店やアトリエ、
宿泊施設が点在しています。
その並びの中で、
ふと目に留まる四角く切り取られた灯り。
なぜだか視線を外せず、
吸い込まれるように眺めていると、
この家の構造が、浮かんできます。
……ちょっと、覗いてみなよ。
そんなふうに話しかけられているようで。

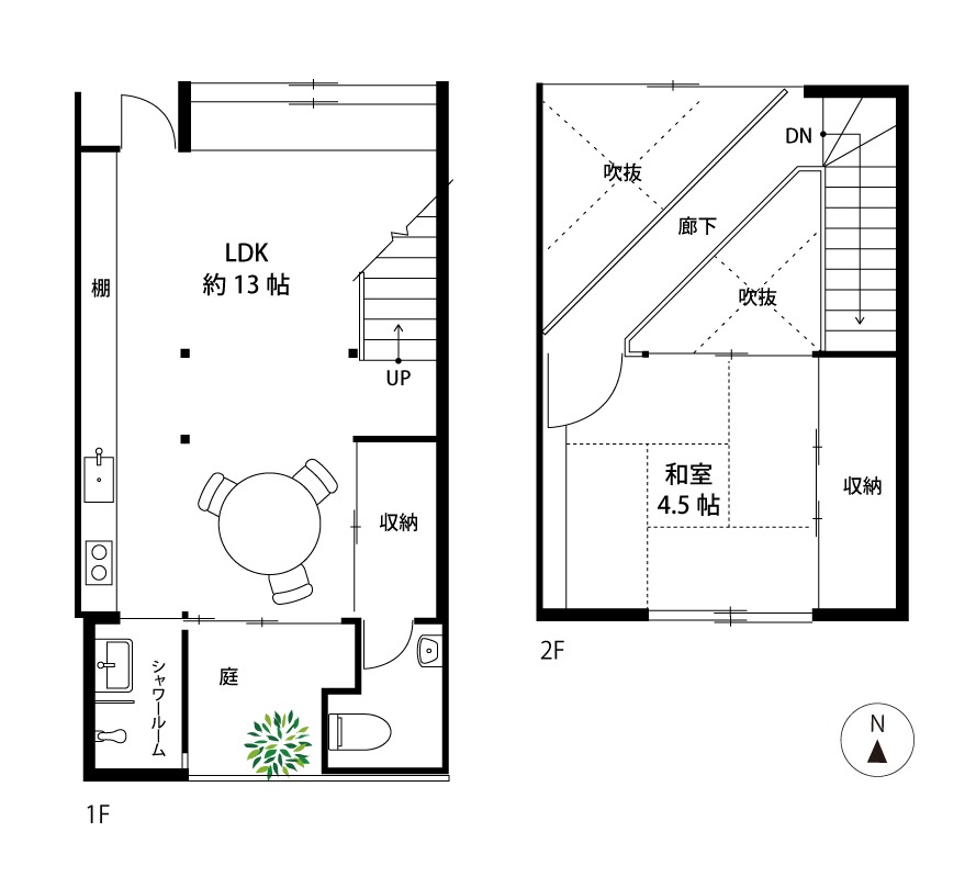
間取りは、庭付きの1LDK。
ゆったりとした1階と、
そして気になる2階。
間取り図の中でも
ひときわ存在感を放つ、
吹き抜けに渡る廊下があります。
中へ入ると、
まず広がるのは土間のリビング。

無機質な土間に彩りを添える坪庭。
町屋らしい、室内にいながら
天気や時間の移ろいを
自然と感じられる空間です。

リビングの左奥にはお手洗い。
新旧をきれいに貼り合わせた、
洗練された空間です。
手洗い器の上には、
改修の際、壁をめくっていくと
ぽっかりと現れた“穴”。
これはもう、偶然生まれたアート。
そう思っていたら、
やっぱりそのまま、
ガラスで保護されていました。
壊すでも、隠すでもない。
時間を、見せる選択。

ダイニングを挟んで反対側には、
シャワールーム。
こちらは家の空気感を損なわないよう、
きちんと新しく整えています。

ダイニングに戻ると目が合うのは
この家を味わうためにあるような
造作のベンチ。
どんな座り方も許してくれる余白があって、
窓に肘をかけて外を眺めたり、
本を読んだり。
ぼーっと上を見上げたり。
見上げてみると、
長い時間を背負った梁の上を、
新しい木材が静かに渡っています。
ベンチ横の階段を上がると…

現れるのは、間取り図で見た
吹き抜けに架かる、あの廊下。
まるで、100年前と今を繋いでいるよう。
外から見上げた時に、
切り取られていた空間は
ここだったみたい。
奥に灯る照明がまた、幻想的で。

廊下の先には、
今と100年前が
絶妙なバランスで同居する、
浮かぶような和室。

整えられた畳や襖、障子が、
大胆に現された骨組みの
深く染まった色合いに、
不思議なほどよく馴染んでいます。
吹き抜け側の窓と
南側に大きく取られた窓。
両側からたっぷりと光が降り注ぎ、
4.5畳の数字以上に、
明るく、広く感じられる空間です。

上を見上げれば、
いつでも時間を遡れる。
この家が建ったとき、
どんな色をしていたのか。
どんな人が、どんな思いで建てたのか。
梁、束、母家。
一つ一つに思いを馳せながら
想像せずにはいられません。

約100年。
建て直されることなく、
その時々の営みに合わせて
手を入れられながら、
この家は時間を重ねてきました。
時の旅は、まだ続いています。
この家の時間を引き継ぎ、
また、必要なところにだけ手を加えながら、
100年と、それを超える時間を、
この家とともに紡いでみませんか。
ここに立つと、その時間を
数字ではなく、
体で理解することになります。

それは構造部から。

それは壁から。

そして、新しい空気を纏った部屋からも。
幾度となく重ねられてきた改修を、
一度すべて落とす。
そうして現れたのは、
当時のままの土壁でした。
いまの技術では再現できない、
町家がまだ“価値”として
語られていなかった頃だった頃の姿。
それをただ保存するのではなく、
現代の暮らしに耐えうるかたちで
丁寧に、正面から戻していく。
そんな、強い意志と愛情をもった
プロジェクトに恵まれた、
贅沢な京町家のご紹介です。

場所は京都・西院。
駅を降りると、通勤や通学の慌ただしさに
観光客の気配が自然に混ざり合う街。
河原町へは阪急電車で約6分。
大阪・梅田へも一本でつながる利便性。
嵐電や市バスも行き交い、
「暮らす京都」と「訪れる京都」が
無理なく重なっている場所です。

少し歩くと、
町家を活かした飲食店やアトリエ、
宿泊施設が点在しています。
その並びの中で、
ふと目に留まる四角く切り取られた灯り。
なぜだか視線を外せず、
吸い込まれるように眺めていると、
この家の構造が、浮かんできます。
……ちょっと、覗いてみなよ。
そんなふうに話しかけられているようで。

間取りは、庭付きの1LDK。
ゆったりとした1階と、
そして気になる2階。
間取り図の中でも
ひときわ存在感を放つ、
吹き抜けに渡る廊下があります。

中へ入ると、
まず広がるのは土間のリビング。

無機質な土間に彩りを添える坪庭。
町屋らしい、室内にいながら
天気や時間の移ろいを
自然と感じられる空間です。

リビングの左奥にはお手洗い。
新旧をきれいに貼り合わせた、
洗練された空間です。
手洗い器の上には、
改修の際、壁をめくっていくと
ぽっかりと現れた“穴”。

これはもう、偶然生まれたアート。
そう思っていたら、
やっぱりそのまま、
ガラスで保護されていました。
壊すでも、隠すでもない。
時間を、見せる選択。

ダイニングを挟んで反対側には、
シャワールーム。
こちらは家の空気感を損なわないよう、
きちんと新しく整えています。

ダイニングに戻ると目が合うのは
この家を味わうためにあるような
造作のベンチ。
どんな座り方も許してくれる余白があって、
窓に肘をかけて外を眺めたり、
本を読んだり。
ぼーっと上を見上げたり。

見上げてみると、
長い時間を背負った梁の上を、
新しい木材が静かに渡っています。

ベンチ横の階段を上がると…

現れるのは、間取り図で見た
吹き抜けに架かる、あの廊下。

まるで、100年前と今を繋いでいるよう。
外から見上げた時に、
切り取られていた空間は
ここだったみたい。
奥に灯る照明がまた、幻想的で。

廊下の先には、
今と100年前が
絶妙なバランスで同居する、
浮かぶような和室。

整えられた畳や襖、障子が、
大胆に現された骨組みの
深く染まった色合いに、
不思議なほどよく馴染んでいます。

吹き抜け側の窓と
南側に大きく取られた窓。
両側からたっぷりと光が降り注ぎ、
4.5畳の数字以上に、
明るく、広く感じられる空間です。

上を見上げれば、
いつでも時間を遡れる。
この家が建ったとき、
どんな色をしていたのか。
どんな人が、どんな思いで建てたのか。
梁、束、母家。
一つ一つに思いを馳せながら
想像せずにはいられません。

約100年。
建て直されることなく、
その時々の営みに合わせて
手を入れられながら、
この家は時間を重ねてきました。
時の旅は、まだ続いています。
この家の時間を引き継ぎ、
また、必要なところにだけ手を加えながら、
100年と、それを超える時間を、
この家とともに紡いでみませんか。
いま募集中の物件一覧
お部屋探しに!今空いている物件だけを絞り込んで探せます
詳しくはこちら


