
4匹と、私。代々木八幡で猫ちゃんたちに囲まれて暮らすなら (東京都渋谷区41㎡の賃貸物件)
猫ちゃんと一緒に暮らしたいのに、
ペット可でお部屋も素敵な
賃貸物件がなかなか見つからない。
多頭飼いなんて、夢のまた夢……。
そんな理由でお部屋探しに
疲弊してしまっている方に朗報です。

代々木八幡駅から徒歩3分の好立地で、
猫ちゃんをなんと4匹まで飼える
素敵なお部屋に空きが出ましたよ!

代々木八幡宮から山手通りを渡り、
路地を1本入ったところに建つ
洗練された雰囲気のマンション。

建物の玄関周りは緑に覆われ、
出入りのたびに気分を
明るくしてくれそうです。
素材違いのモノトーンで構成された
シックなエントランスと共用部を抜け、
階段を上って3階へ。
エレベーターはないけれど、
日々の健康を維持するには
ちょうどいい運動になりますね。

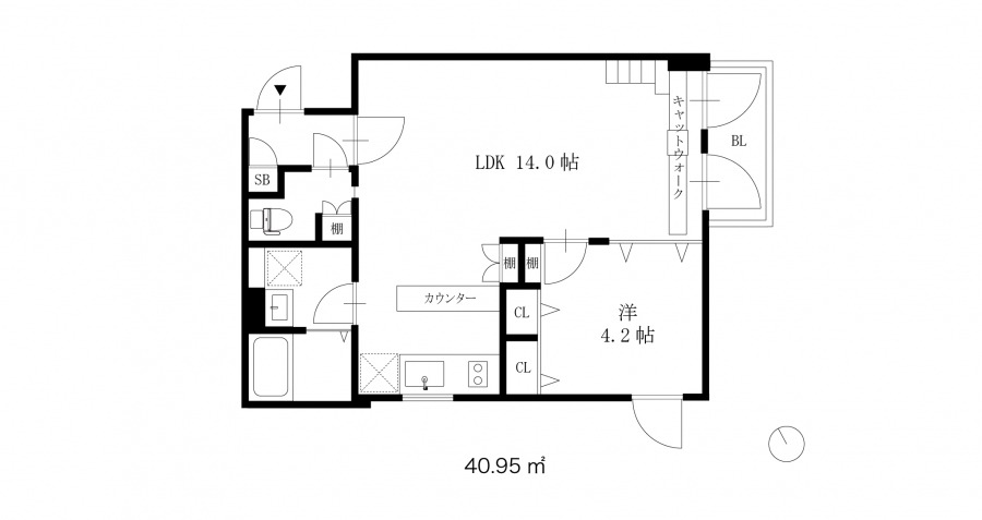
お部屋は40㎡の1LDK。
収納量的には一人暮らし向きかな?
持ち物が少なめであれば、
二人でも暮らせそうです。

玄関は、シンプルでミニマルな空間。
中央写真の右奥に見える扉を開けると、
縦長のシューズボックスが
目の前に(写真右)。
壁には見切りがめぐらされていて、
腰壁部分は猫ちゃんの爪で
傷がつきにくい仕様なのかもしれません。
デザイン性も高くて、一石二鳥です。
お部屋には、猫ちゃん専用の
通用口もありますよ(写真左)。
室内扉の奥には、
14帖のLDKが広がっています。
ここに引っ越してきたとしたら、
猫ちゃんたちは窓際の
キャットウォークへまっしぐら、

ニンゲンはキッチンの冷蔵庫へ
ふらふら引き寄せられる…って
ところでしょうか。

キッチンの向かいにはカウンターがあって
生活感を目隠ししてくれます。
猫ちゃんもいることですし、
天板の上はいつもすっきり
させておかなきゃ。
カウンター脇の収納棚のほか、
カウンター下のスペースも
収納に活用できそうです。

キッチンで一息ついたら
猫ちゃんたちを追いかけて
キャットウォークへ。
壁に設置された木のステップの先は
透明な通路になっているようです。
これはもしかして、
下から猫ちゃんの肉球や
香箱座りを眺められるやつでは?

キャットウォークの真下に
ソファを置いて、見上げるたびに
「絶景!」と身悶えましょう。
ちなみに背後の窓から
バルコニーへ出ることができまして、
こちらもなかなかの景色。
奥に見えるこんもりした緑は
代々木八幡宮の杜じゃないかな。
思ってたより近い…!
あらためて、ご利益がありそうな
ロケーションです。

隣の寝室にはドアノブ付きの
しっかりした建具がありますが、

すりガラスの扉を開け放てば
このようにオープンにも!
猫ちゃんたちと遊ぶ時間は
このスタイルにしてあげても
いいかもしれません。
寝室は4.2帖と
ややコンパクトですが、
たっぷり容量のある収納を完備。
リビングの東向きの窓からの朝日が
すりガラスの扉越しに差し込み、
やさしい目覚めをもたらしてくれそうです。

水回りはLDKの外に並んでいます。
バスルームと洗面所には
左奥に見切れている扉から
アクセスできますが、
トイレの出入り口は
正面に見えている室内扉の外の廊下に。
ただし猫ちゃんはリビングの
室内扉の横の通用口から
トイレに直接アクセスできます。

せっかく通用口があるので、
トイレの棚の下は
猫ちゃんのトイレスペースに。
モザイクタイルがアクセントになった
かわいいバスルームと洗面台は
ニンゲン専用にさせてもらいましょう。
休みの日はすぐ近くの
代々木八幡宮の杜でお弁当を食べて
映画『PERFECT DAYS』ごっこ。
植物たちが部屋で待つ
役所広司の暮らしも素敵でしたが、
こちらは猫ちゃんたちが待っている。
猫とともに暮らすPERFECT DAYSを
ご希望の方は、ぜひお早めに。
ペット可でお部屋も素敵な
賃貸物件がなかなか見つからない。
多頭飼いなんて、夢のまた夢……。
そんな理由でお部屋探しに
疲弊してしまっている方に朗報です。

代々木八幡駅から徒歩3分の好立地で、
猫ちゃんをなんと4匹まで飼える
素敵なお部屋に空きが出ましたよ!

代々木八幡宮から山手通りを渡り、
路地を1本入ったところに建つ
洗練された雰囲気のマンション。

建物の玄関周りは緑に覆われ、
出入りのたびに気分を
明るくしてくれそうです。

素材違いのモノトーンで構成された
シックなエントランスと共用部を抜け、
階段を上って3階へ。
エレベーターはないけれど、
日々の健康を維持するには
ちょうどいい運動になりますね。

お部屋は40㎡の1LDK。
収納量的には一人暮らし向きかな?
持ち物が少なめであれば、
二人でも暮らせそうです。

玄関は、シンプルでミニマルな空間。
中央写真の右奥に見える扉を開けると、
縦長のシューズボックスが
目の前に(写真右)。
壁には見切りがめぐらされていて、
腰壁部分は猫ちゃんの爪で
傷がつきにくい仕様なのかもしれません。
デザイン性も高くて、一石二鳥です。
お部屋には、猫ちゃん専用の
通用口もありますよ(写真左)。

室内扉の奥には、
14帖のLDKが広がっています。
ここに引っ越してきたとしたら、
猫ちゃんたちは窓際の
キャットウォークへまっしぐら、

ニンゲンはキッチンの冷蔵庫へ
ふらふら引き寄せられる…って
ところでしょうか。

キッチンの向かいにはカウンターがあって
生活感を目隠ししてくれます。
猫ちゃんもいることですし、
天板の上はいつもすっきり
させておかなきゃ。

カウンター脇の収納棚のほか、
カウンター下のスペースも
収納に活用できそうです。

キッチンで一息ついたら
猫ちゃんたちを追いかけて
キャットウォークへ。
壁に設置された木のステップの先は
透明な通路になっているようです。
これはもしかして、
下から猫ちゃんの肉球や
香箱座りを眺められるやつでは?

キャットウォークの真下に
ソファを置いて、見上げるたびに
「絶景!」と身悶えましょう。
ちなみに背後の窓から
バルコニーへ出ることができまして、

こちらもなかなかの景色。
奥に見えるこんもりした緑は
代々木八幡宮の杜じゃないかな。
思ってたより近い…!
あらためて、ご利益がありそうな
ロケーションです。

隣の寝室にはドアノブ付きの
しっかりした建具がありますが、

すりガラスの扉を開け放てば
このようにオープンにも!
猫ちゃんたちと遊ぶ時間は
このスタイルにしてあげても
いいかもしれません。

寝室は4.2帖と
ややコンパクトですが、
たっぷり容量のある収納を完備。
リビングの東向きの窓からの朝日が
すりガラスの扉越しに差し込み、
やさしい目覚めをもたらしてくれそうです。

水回りはLDKの外に並んでいます。
バスルームと洗面所には
左奥に見切れている扉から
アクセスできますが、
トイレの出入り口は
正面に見えている室内扉の外の廊下に。
ただし猫ちゃんはリビングの
室内扉の横の通用口から
トイレに直接アクセスできます。

せっかく通用口があるので、
トイレの棚の下は
猫ちゃんのトイレスペースに。
モザイクタイルがアクセントになった
かわいいバスルームと洗面台は
ニンゲン専用にさせてもらいましょう。

休みの日はすぐ近くの
代々木八幡宮の杜でお弁当を食べて
映画『PERFECT DAYS』ごっこ。
植物たちが部屋で待つ
役所広司の暮らしも素敵でしたが、
こちらは猫ちゃんたちが待っている。
猫とともに暮らすPERFECT DAYSを
ご希望の方は、ぜひお早めに。
いま募集中の物件一覧
お部屋探しに!今空いている物件だけを絞り込んで探せます
詳しくはこちら


