
大阪平野を一望! “眺め”に特化したリノベーション戸建て (大阪府東大阪市77㎡の売買物件)
最初にお伝えしておくと、
今回ご紹介するのは
オーナチェンジ物件です。

もしですよ、もしも自分が
不動産投資をすることになったら。
物件ファンたるもの、
自分も心から住みたいと思えて
愛せる物件を選びたいですよね。

不動産投資なんて
自分には縁がないという人も
思わず所有したくなる、
そんな素敵なお家なんです。

場所は大阪のベッドタウン・枚岡。
有名な神社をはじめ、歴史や文化を
感じられるスポットが点在し、
四季折々の自然を感じられる町。
それでいて都心へのアクセスも良好です。
住環境に恵まれてるのはわかるけど、
ベッドタウンの家って不動産としての
価値はどうなのよと思う人も
いるのではないでしょうか。
でもね、枚岡の家には唯一無二の
価値がありまして……
それが、こちら。

大阪平野を一望する
息をのむようなパノラマビュー!
この眺めは大阪市内のタワマンでは
手に入らないここだけのもの。
そしてたぶん、10年後も
損なわれることはなさそう。

それ、めっちゃ大きな価値やん! と、
眺望に全振りして生まれ変わった
お家がこちらになります。
レトロな味わい深さはあるけれど、
一見はよくある普通の建売住宅。
この家がもつオリジナルの
魅力を際立たせるため、
さらにコストの側面からも
「余計なことはしない」ことに
こだわったそうで、
玄関も内装材はほぼ既存のまま。
一方、階段の蹴込み板や
壁の一部、建具を撤去して
昭和の建売住宅にありがちな
暗さや圧迫感のない
“良い気”が流れそうな空間に。

玄関の棚はわざわざ古材を使って
新規に造作したのだとか。
既存のレトロなタイルに
よくなじんでいますね。

階段下は、もともとあった
押し入れを取っ払って
洗面カウンターを設置。
その先に、開放的な
ダイニングキッチンが広がります。
ここは内装材も設備も一新。
料理や食事が楽しみになりそうな
現代的な明るい空間です。

こうして眺めると、
新旧のコントラストを効かせた
デザインであることがよくわかります。
耐震補強工事も実施済み。

小上がりになったリビングの床は
桜の無垢フローリング。
こう見えて元和室です。
そして、大きな窓の外に見えるのが…

新たに設けたウッドデッキテラス!
眺望のために
室内の広さよりも優先して
広めのテラスをつくったそう。
デッキチェアを置けば
特等席のできあがりです。
もちろん眺望は高いところからの
ほうがより美しいわけで、
階段を上った先、

2階は眺望側の外壁を取り払い、
壁いっぱいにサッシを設置。
室内からの景色も
十分にすばらしいですが、

バルコニーへ出ればこの眺め!
夕日もなんと美しい……。

お部屋は在宅ワーク需要を想定し、
デスクなどを置いても開放的に
使える空間をめざしたそう。
趣味のスペースにしてもいいですね。

作業に疲れたら、
吹き抜け部分のハンモックネットに
ゴロリと寝転ぶのはいかがでしょう。
2階からの採光を1階のリビングに
届ける役割も担ってくれています。
隣には、寝室を想定した和室が。
障子紙は耐久性のある強化和紙に
張り替えられています。

トイレと脱衣室は
真っ白の清潔感のある空間に。
便座や洗濯パンは
新しいものに交換済みです。

お風呂もレトロかわいい
既存の在来浴槽やタイルを
再利用しつつ、水栓などは新しく。
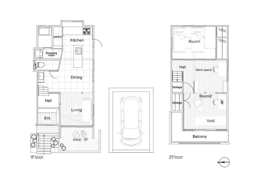
最後に間取りをどうぞ。
駅徒歩5分ではありますが
駐車スペースも完備しています。

数字では表せない価値をもつ
眺望特化のリノベーション戸建て。
自分が心から住みたいと思う物件なら、
刺さる人はつねに一定数いるはず。
現在もしっかり入居者さんがいて、
12万8000円/月で賃貸中だそう。
近鉄沿線で奈良や京都にも
アクセスしやすいから、
将来的には民泊をするのも楽しいかも。
そんなふうにワクワクできる
資産を所有したい人に
出会ってほしい物件です。
今回ご紹介するのは
オーナチェンジ物件です。

もしですよ、もしも自分が
不動産投資をすることになったら。
物件ファンたるもの、
自分も心から住みたいと思えて
愛せる物件を選びたいですよね。

不動産投資なんて
自分には縁がないという人も
思わず所有したくなる、
そんな素敵なお家なんです。

場所は大阪のベッドタウン・枚岡。
有名な神社をはじめ、歴史や文化を
感じられるスポットが点在し、
四季折々の自然を感じられる町。
それでいて都心へのアクセスも良好です。

住環境に恵まれてるのはわかるけど、
ベッドタウンの家って不動産としての
価値はどうなのよと思う人も
いるのではないでしょうか。
でもね、枚岡の家には唯一無二の
価値がありまして……
それが、こちら。

大阪平野を一望する
息をのむようなパノラマビュー!
この眺めは大阪市内のタワマンでは
手に入らないここだけのもの。
そしてたぶん、10年後も
損なわれることはなさそう。

それ、めっちゃ大きな価値やん! と、
眺望に全振りして生まれ変わった
お家がこちらになります。
レトロな味わい深さはあるけれど、
一見はよくある普通の建売住宅。
この家がもつオリジナルの
魅力を際立たせるため、
さらにコストの側面からも
「余計なことはしない」ことに
こだわったそうで、

玄関も内装材はほぼ既存のまま。
一方、階段の蹴込み板や
壁の一部、建具を撤去して
昭和の建売住宅にありがちな
暗さや圧迫感のない
“良い気”が流れそうな空間に。

玄関の棚はわざわざ古材を使って
新規に造作したのだとか。
既存のレトロなタイルに
よくなじんでいますね。

階段下は、もともとあった
押し入れを取っ払って
洗面カウンターを設置。

その先に、開放的な
ダイニングキッチンが広がります。
ここは内装材も設備も一新。
料理や食事が楽しみになりそうな
現代的な明るい空間です。

こうして眺めると、
新旧のコントラストを効かせた
デザインであることがよくわかります。
耐震補強工事も実施済み。

小上がりになったリビングの床は
桜の無垢フローリング。
こう見えて元和室です。
そして、大きな窓の外に見えるのが…

新たに設けたウッドデッキテラス!
眺望のために
室内の広さよりも優先して
広めのテラスをつくったそう。
デッキチェアを置けば
特等席のできあがりです。

もちろん眺望は高いところからの
ほうがより美しいわけで、
階段を上った先、

2階は眺望側の外壁を取り払い、
壁いっぱいにサッシを設置。
室内からの景色も
十分にすばらしいですが、

バルコニーへ出ればこの眺め!

夕日もなんと美しい……。

お部屋は在宅ワーク需要を想定し、
デスクなどを置いても開放的に
使える空間をめざしたそう。
趣味のスペースにしてもいいですね。

作業に疲れたら、
吹き抜け部分のハンモックネットに
ゴロリと寝転ぶのはいかがでしょう。
2階からの採光を1階のリビングに
届ける役割も担ってくれています。

隣には、寝室を想定した和室が。
障子紙は耐久性のある強化和紙に
張り替えられています。

トイレと脱衣室は
真っ白の清潔感のある空間に。
便座や洗濯パンは
新しいものに交換済みです。

お風呂もレトロかわいい
既存の在来浴槽やタイルを
再利用しつつ、水栓などは新しく。

最後に間取りをどうぞ。
駅徒歩5分ではありますが
駐車スペースも完備しています。

数字では表せない価値をもつ
眺望特化のリノベーション戸建て。
自分が心から住みたいと思う物件なら、
刺さる人はつねに一定数いるはず。
現在もしっかり入居者さんがいて、
12万8000円/月で賃貸中だそう。
近鉄沿線で奈良や京都にも
アクセスしやすいから、
将来的には民泊をするのも楽しいかも。
そんなふうにワクワクできる
資産を所有したい人に
出会ってほしい物件です。
いま募集中の物件一覧
お部屋探しに!今空いている物件だけを絞り込んで探せます
詳しくはこちら


