
お部屋の余白に自分の色をのせて。ここから始めるのは新生活?それとも念願の小さなビジネス?(京都市下京区29㎡の賃貸物件)
住まいにも最適、
そしてサロンやオフィスにも
ぴったりのこの物件。
理由は、立地がとても良くて
京都随一の繁華街で
商業の中心地でもある、
四条烏丸エリアにあるのです。

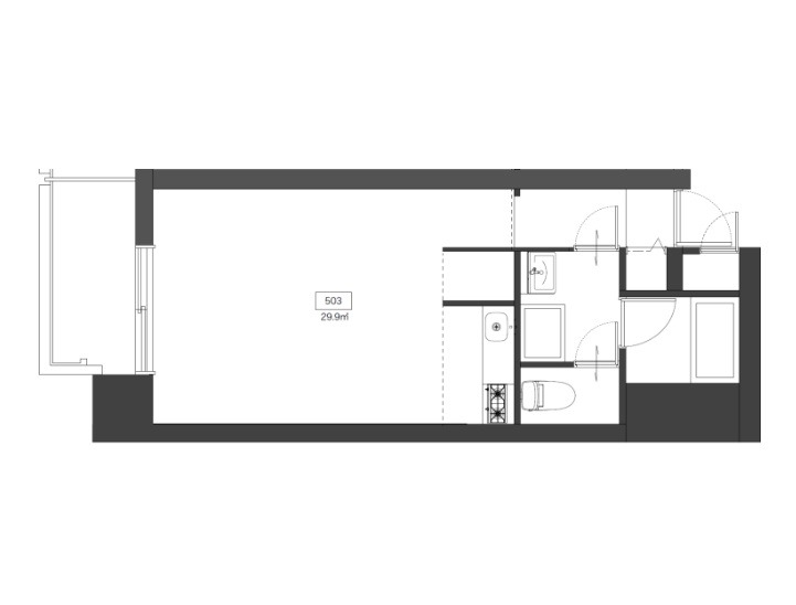
間取りは、水回りを完備した
シンプルなワンルーム。
住居兼オフィスとしても
活用できます。
コンパクトに
自分サイズのビジネスを
始めたい人にもちょうどいい
サイズ感ではないでしょうか。

室内はやさしい白を基調に
モルタル調の床が
スタイリッシュな印象です。
ここに住まう方の個性がそのまま映える
シンプルさが魅力的。

こちらは、
お部屋奥からのアングル。
このふんわりカーテンの向こう側、
勘が良い方ならもうお気づきですよね。

そう、姿を現すのは
キッチンスペース。
モノトーンでお部屋の雰囲気とも
統一感がありますね。
それに生活感が隠せる
カーテンの仕切りがあるのは
うれしいポイントです。
2くちガスコンロに
収納スペースもしっかりあって、
住まいのキッチンとしても
十分のスペックです。

余白のある空間は、
サロンにもオフィスにも
使いやすい。
施術ベッドや家具を置くだけで
雰囲気がすぐに決まります。
真っ白な壁は
アートも映えそうです。
アトリエ兼ギャラリーにも
ぴったりではないでしょうか。
写真には写っていませんが、
エアコンが1台付いているそう。

水回りは玄関近くに
まとまっています。
トイレと浴室は別なので、
来客時に案内しやすいのも
サロン向きの理由のひとつ。

洗面室に洗濯機置き場を完備。

お隣に浴室です。

こちらは玄関。入って右側には
収納スペース。
なるほど、ここに収納を設けることで
居室をフル活用できるというわけですね。

場所は前述したとおり、
地下鉄「四条駅」、
阪急「烏丸駅」から徒歩2分。
オフィス街の真ん中で、
活気がありながらも
落ち着いた雰囲気が魅力です。
近くにある商業施設「SUINA室町」は
カフェや本屋、雑貨などがそろい、
仕事終わりのお買い物なども
楽しめますよ。

最寄駅から近いので、
人を集めたり呼びやすい点も
ビジネスを始めるのに
良い条件です。
オフィスにサロン、
スタジオ、ギャラリーなどなど、
そしてもちろん住まいにも。
可能性は無限大。
こんなに素敵な場所で
新しいことを始められたら
最高ですね。
そしてサロンやオフィスにも
ぴったりのこの物件。
理由は、立地がとても良くて
京都随一の繁華街で
商業の中心地でもある、
四条烏丸エリアにあるのです。

間取りは、水回りを完備した
シンプルなワンルーム。
住居兼オフィスとしても
活用できます。
コンパクトに
自分サイズのビジネスを
始めたい人にもちょうどいい
サイズ感ではないでしょうか。

室内はやさしい白を基調に
モルタル調の床が
スタイリッシュな印象です。
ここに住まう方の個性がそのまま映える
シンプルさが魅力的。

こちらは、
お部屋奥からのアングル。
このふんわりカーテンの向こう側、
勘が良い方ならもうお気づきですよね。

そう、姿を現すのは
キッチンスペース。
モノトーンでお部屋の雰囲気とも
統一感がありますね。
それに生活感が隠せる
カーテンの仕切りがあるのは
うれしいポイントです。
2くちガスコンロに
収納スペースもしっかりあって、
住まいのキッチンとしても
十分のスペックです。

余白のある空間は、
サロンにもオフィスにも
使いやすい。
施術ベッドや家具を置くだけで
雰囲気がすぐに決まります。
真っ白な壁は
アートも映えそうです。
アトリエ兼ギャラリーにも
ぴったりではないでしょうか。
写真には写っていませんが、
エアコンが1台付いているそう。

水回りは玄関近くに
まとまっています。
トイレと浴室は別なので、
来客時に案内しやすいのも
サロン向きの理由のひとつ。

洗面室に洗濯機置き場を完備。

お隣に浴室です。

こちらは玄関。入って右側には
収納スペース。
なるほど、ここに収納を設けることで
居室をフル活用できるというわけですね。

場所は前述したとおり、
地下鉄「四条駅」、
阪急「烏丸駅」から徒歩2分。
オフィス街の真ん中で、
活気がありながらも
落ち着いた雰囲気が魅力です。
近くにある商業施設「SUINA室町」は
カフェや本屋、雑貨などがそろい、
仕事終わりのお買い物なども
楽しめますよ。

最寄駅から近いので、
人を集めたり呼びやすい点も
ビジネスを始めるのに
良い条件です。
オフィスにサロン、
スタジオ、ギャラリーなどなど、
そしてもちろん住まいにも。
可能性は無限大。
こんなに素敵な場所で
新しいことを始められたら
最高ですね。
いま募集中の物件一覧
お部屋探しに!今空いている物件だけを絞り込んで探せます
詳しくはこちら


