
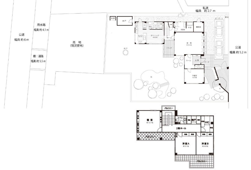
静かな水音に癒やされる日々。名家のような邸宅で過ごす、和洋折衷の穏やかな時間(静岡県沼津市227㎡の売買物件)
まるでドラマに出てくる
名家の邸宅のような、
雰囲気たっぷりのインテリア。
暮らしているだけで自然と
立ち居振る舞いも丁寧になりそうな
品格のある空間です。












文・佐藤シュン 浜松で設計事務所をやりながら、黒猫と暮らしています。
いま募集中の物件一覧
お部屋探しに!今空いている物件だけを絞り込んで探せます
詳しくはこちら


まるでドラマに出てくる
名家の邸宅のような、
雰囲気たっぷりのインテリア。
暮らしているだけで自然と
立ち居振る舞いも丁寧になりそうな
品格のある空間です。












文・佐藤シュン 浜松で設計事務所をやりながら、黒猫と暮らしています。
お部屋探しに!今空いている物件だけを絞り込んで探せます
詳しくはこちら
こちらは、ファンクラブ「物件ファンファンの会」にて物件ファンの活動をサポートしてくださった方々です。
現在は申込みを終了しています。 詳細はこちら