
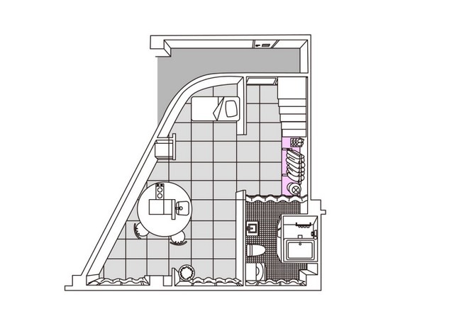
モノトーンの空間にまあるい島がポツン。これぞ真のアイランドキッチン!? (京都市右京区55㎡の賃貸物件)
柱をぐるりと囲む円形のキッチン。
この様がまさに島のよう。
掲載元サイトにそう書いてあるのを見て
ハッとしました。
これが本当のアイランドキッチン
だったのですね…!

アイランドっぷりはさておき、
美しく機能的なキッチンであることは
間違いありません。
かっこいい水栓と、
スマートに縦に並んだ
2くちガスコンロ。

逆側はテーブルになっていて、
できたての料理を
さっとサーブできてしまいます。
うん、これはよいキッチン。
うちにもほしい!

そんなお部屋があるのは、
京都のロイヤルコート嵯峨の4階。
内装デザインを担当したのは
建築士の澤 康博さんです。
澤さんが「自分の住みたい家」を
コンセプトにデザインしたという
55㎡のビッグワンルームは、
アイランドキッチン以外にも
特徴的な設えがたくさん。

順番に見ていくと、
まず玄関から室内扉を開けて
居室に足を踏み入れた際の
光景がこちら。
いろいろと気になるものが
目に飛び込んできますが、
いちばん存在感があるのは
手前の階段ですかね。
ワンルームといいつつ
ロフトがあるのねと思ったら、

ロフト、ないんです。
天井が塞がっているので
上の階にも行けません。
どこにもつながらない階段をあえて残し、
下段をモルタルで延長して
ベンチのように仕立てたんですって。
ニュアンスあるピンクが良い感じ。

なので、階段ごとオープンな
収納にしてもいいし、
なんとなく腰かけてもいい。
そんな素敵なスペースです。

続いて気になったのは
正面のサニタリー。
一段高くなった床には
白いタイルが敷き詰められていますが、
なんと出入りする側に
壁も扉もないんです。
おそらく元は
居室だったであろう空間に
洗面台とトイレが設置され、
一角に扉付きのユニットバスが
どんと置かれたようなつくり。
エアコンがあるので、
夏は浴室から出たら
冷房の効いた開放的な空間で
体を拭いて、髪を乾かして。
冬だって暖房があるから
開放的だけど寒くない。

来客時はさっとカーテンを引けば
OKという、快適かつオープンな
サニタリーなのでした。

大胆なつくりのサニタリーを
見てもわかるように、
じつはこのお部屋の最大の特徴は
できるかぎり建具を排したこと。
メインスペースにも
壁の開口からアクセスします。
で、こちらが
丸いアイランドキッチンのある
メインスペースというわけ。
それにしてもかっこいいお部屋だな。

駆体現しになった天井や梁と、
つるんとした床や壁の
バランスがなんとも絶妙で。
奥に見える軽く仕切られた空間は
ベッドスペースにどうぞ。

あとは窓際にソファを置いて
くつろぎスペースにしようかな。
お部屋のレイアウトは自由自在です。
ちなみに、居室の窓の外の
バルコニーはサニタリーの外にも
つながっているので、
お風呂から出て即外気浴、
なんてこともできるかも。

こんなに自由でかっこいいお部屋は
ほかにそうないはず。
さすがロイヤルコート嵯峨やで! と
あらためて感心したのでした。
この様がまさに島のよう。
掲載元サイトにそう書いてあるのを見て
ハッとしました。
これが本当のアイランドキッチン
だったのですね…!

アイランドっぷりはさておき、
美しく機能的なキッチンであることは
間違いありません。
かっこいい水栓と、
スマートに縦に並んだ
2くちガスコンロ。

逆側はテーブルになっていて、
できたての料理を
さっとサーブできてしまいます。
うん、これはよいキッチン。
うちにもほしい!

そんなお部屋があるのは、
京都のロイヤルコート嵯峨の4階。
内装デザインを担当したのは
建築士の澤 康博さんです。

澤さんが「自分の住みたい家」を
コンセプトにデザインしたという
55㎡のビッグワンルームは、
アイランドキッチン以外にも
特徴的な設えがたくさん。

順番に見ていくと、
まず玄関から室内扉を開けて
居室に足を踏み入れた際の
光景がこちら。
いろいろと気になるものが
目に飛び込んできますが、
いちばん存在感があるのは
手前の階段ですかね。
ワンルームといいつつ
ロフトがあるのねと思ったら、

ロフト、ないんです。
天井が塞がっているので
上の階にも行けません。

どこにもつながらない階段をあえて残し、
下段をモルタルで延長して
ベンチのように仕立てたんですって。
ニュアンスあるピンクが良い感じ。

なので、階段ごとオープンな
収納にしてもいいし、
なんとなく腰かけてもいい。
そんな素敵なスペースです。

続いて気になったのは
正面のサニタリー。
一段高くなった床には
白いタイルが敷き詰められていますが、
なんと出入りする側に
壁も扉もないんです。

おそらく元は
居室だったであろう空間に
洗面台とトイレが設置され、
一角に扉付きのユニットバスが
どんと置かれたようなつくり。
エアコンがあるので、
夏は浴室から出たら
冷房の効いた開放的な空間で
体を拭いて、髪を乾かして。
冬だって暖房があるから
開放的だけど寒くない。

来客時はさっとカーテンを引けば
OKという、快適かつオープンな
サニタリーなのでした。

大胆なつくりのサニタリーを
見てもわかるように、
じつはこのお部屋の最大の特徴は
できるかぎり建具を排したこと。
メインスペースにも
壁の開口からアクセスします。

で、こちらが
丸いアイランドキッチンのある
メインスペースというわけ。
それにしてもかっこいいお部屋だな。

駆体現しになった天井や梁と、
つるんとした床や壁の
バランスがなんとも絶妙で。
奥に見える軽く仕切られた空間は
ベッドスペースにどうぞ。

あとは窓際にソファを置いて
くつろぎスペースにしようかな。
お部屋のレイアウトは自由自在です。

ちなみに、居室の窓の外の
バルコニーはサニタリーの外にも
つながっているので、
お風呂から出て即外気浴、
なんてこともできるかも。

こんなに自由でかっこいいお部屋は
ほかにそうないはず。
さすがロイヤルコート嵯峨やで! と
あらためて感心したのでした。
いま募集中の物件一覧
お部屋探しに!今空いている物件だけを絞り込んで探せます
詳しくはこちら


