
レトロな建具を開けて秋晴れの縁側へ。小さな中庭をぐるり囲む平屋 (兵庫県三田市63㎡の賃貸物件)
こちらは過去の物件です。アーカイブとしてお楽しみ下さい。
ほどよい広さのお部屋と、縁側。
それに、自分で難なく手入れできる
小さな中庭のある平屋が
理想的な一人or二人暮らしの
最終形態だと思いませんか?

もちろん立地にもこだわりたい。
郊外の静かな環境が好ましいけれど、
できれば都心へ通いたいですよね。
今回ご紹介する物件があるのは、
大阪から電車で40分の兵庫県三田市。

幅広の道に沿ってお屋敷が並ぶ町は、
江戸時代は上級武士が住み
「侍町」と呼ばれていたのだとか。
そんな町並みを脇道に入った
路地の奥に、

ひっそりと平屋がたたずんでいます。
どうですか、この貫禄。
あまりの渋さに
一瞬怯みそうになりますが、
中はまた違った雰囲気なのでお楽しみに。

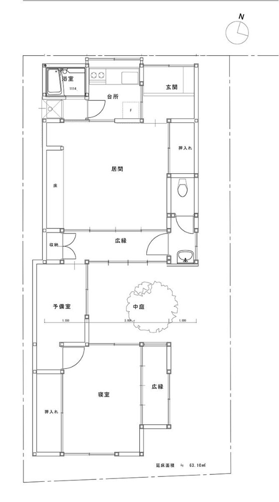
お家は、小さな中庭を囲んで
居室が3つ配された3Kのようなつくり。
それぞれの部屋が広いので
家族で住むこともできますよ。

玄関の木の格子戸を開けると、
レトロながら凛とした空気の漂う
空間が広がっていました。
オリジナルの建具などを残しつつ、
床や水回りを改修してくれたそう。
こちらは玄関入ってすぐの居間。
古い家だとは思えないほど天井が高く
ひろびろとした印象です。
足元は肌触りの良さそうな
杉の無垢フローリング。
そこかしこで存在感を放つ
オリジナルの建具たち。

奥には広縁があり、
その先に見えているのは…

オアシスのような中庭。
プランターを使って
家庭菜園をはじめたり
いろいろできそうだれど、
ここはひとまず庭の緑を眺めつつ、
縁側に腰かけてただぼーっと
しましょうか。
熱さが和らぎ、蚊も姿を消して
庭で過ごすには最高の季節だもの。
居間の隣はキッチン。
新しめのレンジフードがあるので
ガッツリお料理できるはずですが、

現状は1くちIHコンロが
置かれているのみ。
もっと大きなコンロも置けそうなので
お好みで使いやすいものを用意しても。
ぴかぴか輝く天板とシンクは
清潔感・サイズともに申し分ありません。

居間と寝室をつなぐ
予備室兼廊下は
十分にお部屋として使える広さ。
リモートワークや作業のスペースに
活用するのがよさそうです。
このお部屋を抜けた先に、

ゆったりした寝室があります。
かなり大容量の押し入れ付き。
寝室も広縁を備え、
外は先ほどのお庭とつながっています。
窓を出てすぐのところが
洗濯干しスペースに
なっているようですね。

窓のあるお風呂には
ユニットバスが入り、

トイレも比較的新しいものに交換済み。
古民家で気になるのは水回りですから
きっちり改修されているのは
うれしいですね。
そして、忘れてはならないのが
オリジナルの建具たち。
美しく経年した木製サッシに、
型板ガラス。

その型板ガラスを透過して
室内に注ぐやわらかな光。

下地窓のような開口もありました。
侘び寂び、風情…!
なんなら終の棲家にしたくなる
すんばらしい平屋。
まだ若いのにこんな家に
住んじゃっていいんでしょうかと
不安になりそうですが、いいんです。
うれしいことに賃貸、しかも
ちょっと驚くお家賃なので、
一人or二人暮らしの理想形探しの
一環として、ぜひに。
それに、自分で難なく手入れできる
小さな中庭のある平屋が
理想的な一人or二人暮らしの
最終形態だと思いませんか?

もちろん立地にもこだわりたい。
郊外の静かな環境が好ましいけれど、
できれば都心へ通いたいですよね。
今回ご紹介する物件があるのは、
大阪から電車で40分の兵庫県三田市。

幅広の道に沿ってお屋敷が並ぶ町は、
江戸時代は上級武士が住み
「侍町」と呼ばれていたのだとか。
そんな町並みを脇道に入った
路地の奥に、

ひっそりと平屋がたたずんでいます。

どうですか、この貫禄。
あまりの渋さに
一瞬怯みそうになりますが、
中はまた違った雰囲気なのでお楽しみに。

お家は、小さな中庭を囲んで
居室が3つ配された3Kのようなつくり。
それぞれの部屋が広いので
家族で住むこともできますよ。

玄関の木の格子戸を開けると、
レトロながら凛とした空気の漂う
空間が広がっていました。
オリジナルの建具などを残しつつ、
床や水回りを改修してくれたそう。

こちらは玄関入ってすぐの居間。
古い家だとは思えないほど天井が高く
ひろびろとした印象です。
足元は肌触りの良さそうな
杉の無垢フローリング。
そこかしこで存在感を放つ
オリジナルの建具たち。

奥には広縁があり、
その先に見えているのは…

オアシスのような中庭。
プランターを使って
家庭菜園をはじめたり
いろいろできそうだれど、
ここはひとまず庭の緑を眺めつつ、
縁側に腰かけてただぼーっと
しましょうか。
熱さが和らぎ、蚊も姿を消して
庭で過ごすには最高の季節だもの。

居間の隣はキッチン。
新しめのレンジフードがあるので
ガッツリお料理できるはずですが、

現状は1くちIHコンロが
置かれているのみ。
もっと大きなコンロも置けそうなので
お好みで使いやすいものを用意しても。
ぴかぴか輝く天板とシンクは
清潔感・サイズともに申し分ありません。

居間と寝室をつなぐ
予備室兼廊下は
十分にお部屋として使える広さ。
リモートワークや作業のスペースに
活用するのがよさそうです。
このお部屋を抜けた先に、

ゆったりした寝室があります。
かなり大容量の押し入れ付き。

寝室も広縁を備え、
外は先ほどのお庭とつながっています。
窓を出てすぐのところが
洗濯干しスペースに
なっているようですね。

窓のあるお風呂には
ユニットバスが入り、

トイレも比較的新しいものに交換済み。
古民家で気になるのは水回りですから
きっちり改修されているのは
うれしいですね。

そして、忘れてはならないのが
オリジナルの建具たち。
美しく経年した木製サッシに、
型板ガラス。

その型板ガラスを透過して
室内に注ぐやわらかな光。

下地窓のような開口もありました。
侘び寂び、風情…!

なんなら終の棲家にしたくなる
すんばらしい平屋。
まだ若いのにこんな家に
住んじゃっていいんでしょうかと
不安になりそうですが、いいんです。
うれしいことに賃貸、しかも
ちょっと驚くお家賃なので、
一人or二人暮らしの理想形探しの
一環として、ぜひに。
いま募集中の物件一覧
お部屋探しに!今空いている物件だけを絞り込んで探せます
詳しくはこちら


