
巨大な古民家を遊び場に。DIYもお店づくりもできる賃貸(山梨県山梨市317㎡の賃貸物件)
こちらは過去の物件です。アーカイブとしてお楽しみ下さい。
物件ファン名物とも言える、 チャレンジ物件の登場です。
俺の村を作るんだ!と
『どうぶつの森』のごとく
開拓できる方に
使っていただきたい賃貸物件です。

標高が高いため、 夏はクーラーいらずで 涼しく過ごせるそうです。
避暑地としても最高の立地。
そんなエリアに静かに建つ、
存在感を放つ大きな古民家。

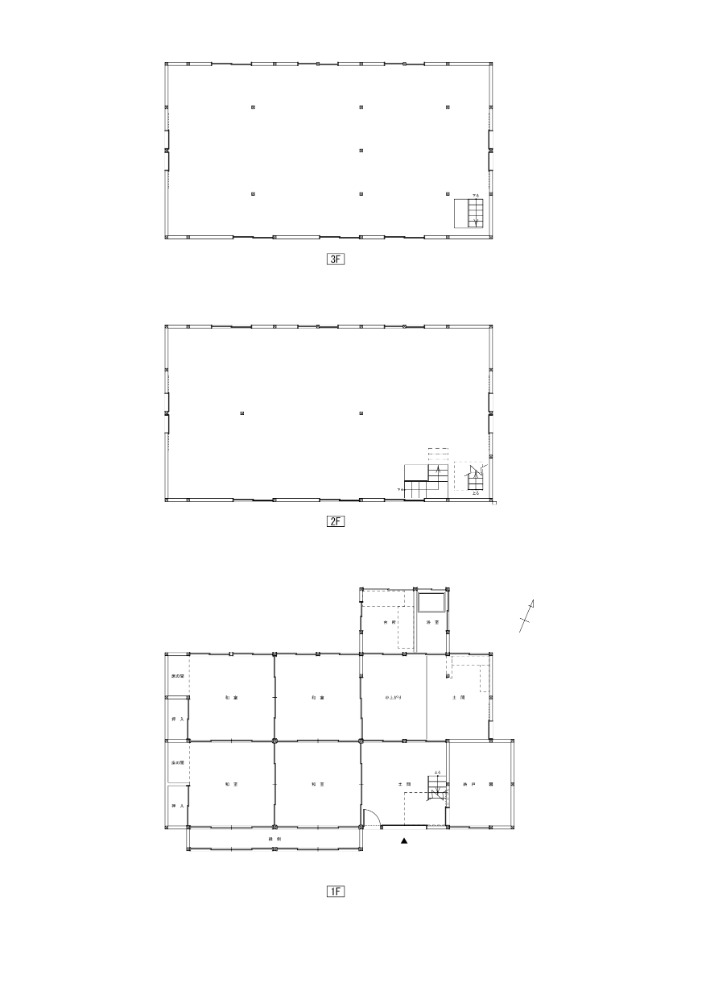
宅地部分だけで約579㎡、 母屋の延べ床面積は約318㎡という 堂々たる規模!
蔵は計測していないので、
それも含めたらかなりの広さです。















まさに『ぼくのなつやすみ』的な
長閑な空気が漂う立地。







下水が来ていないエリアのため、
簡易水栓や
浄化槽の新設が望ましいなど、
手を入れるべき点はいくつかあります。

確かにハードルは高い。
でも見方を変えれば、
これは最高の余白。
ガッツリ目のDIY好きな方には
もってこいの舞台ではないでしょうか。

柱や梁を磨いて
ピカピカにする。

倉庫やアトリエにしたり、 趣味の秘密基地にするのも面白い。
ちなみに、ペットの相談も可能です。



ドローンを扱う事務所としてなど、
広い敷地を活かしたビジネス活用も
大いに検討できますね。

温泉でDIY疲れを流し 休憩処でひと休み。 隣の居酒屋で締め!
そんな妄想を
ふくらませているだけで
ワクワクしてきます。

「大きな古民家を
自分らしく使いたい」という方には
うってつけの自由度です。

母屋南側の細道を通れば コツは必要ですが ステップワゴンも通行可能。
ただ、北側の畑を
一部駐車場に転用する方法が
一番現実的かもしれません。

がっつりリノベしてもいいし、
少しずつ直しながら住んでいくのもアリ。

手間も時間もかかるけれど、 その分、自分で育てた家になるのが 最高に楽しいはずです。
文・戸田江美
デザイナー。荒川区のマンションの大家をしている。落語が好き。@530e
いま募集中の物件一覧
お部屋探しに!今空いている物件だけを絞り込んで探せます
詳しくはこちら


