
気分は宇宙船の乗組員! 無機質と柔らかさが融合した、ぐるり渦巻きの部屋。(東京都墨田区47㎡の賃貸物件)
こちらは過去の物件です。アーカイブとしてお楽しみ下さい。
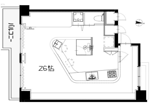
無機質だけど柔らかな白のワンルーム。
ぐるりと渦を巻いたような
不思議な空間デザインは
SF映画と数式に
着想を得て生まれたそう。
こんな部屋、一度は住んでみたい。






























あ、そうそう
言い忘れていました!

文:音蕗 弦 今年は自宅を絶賛リフォーム中 好きなのはクラシックギターとブラジル音楽
いま募集中の物件一覧
お部屋探しに!今空いている物件だけを絞り込んで探せます
詳しくはこちら


