
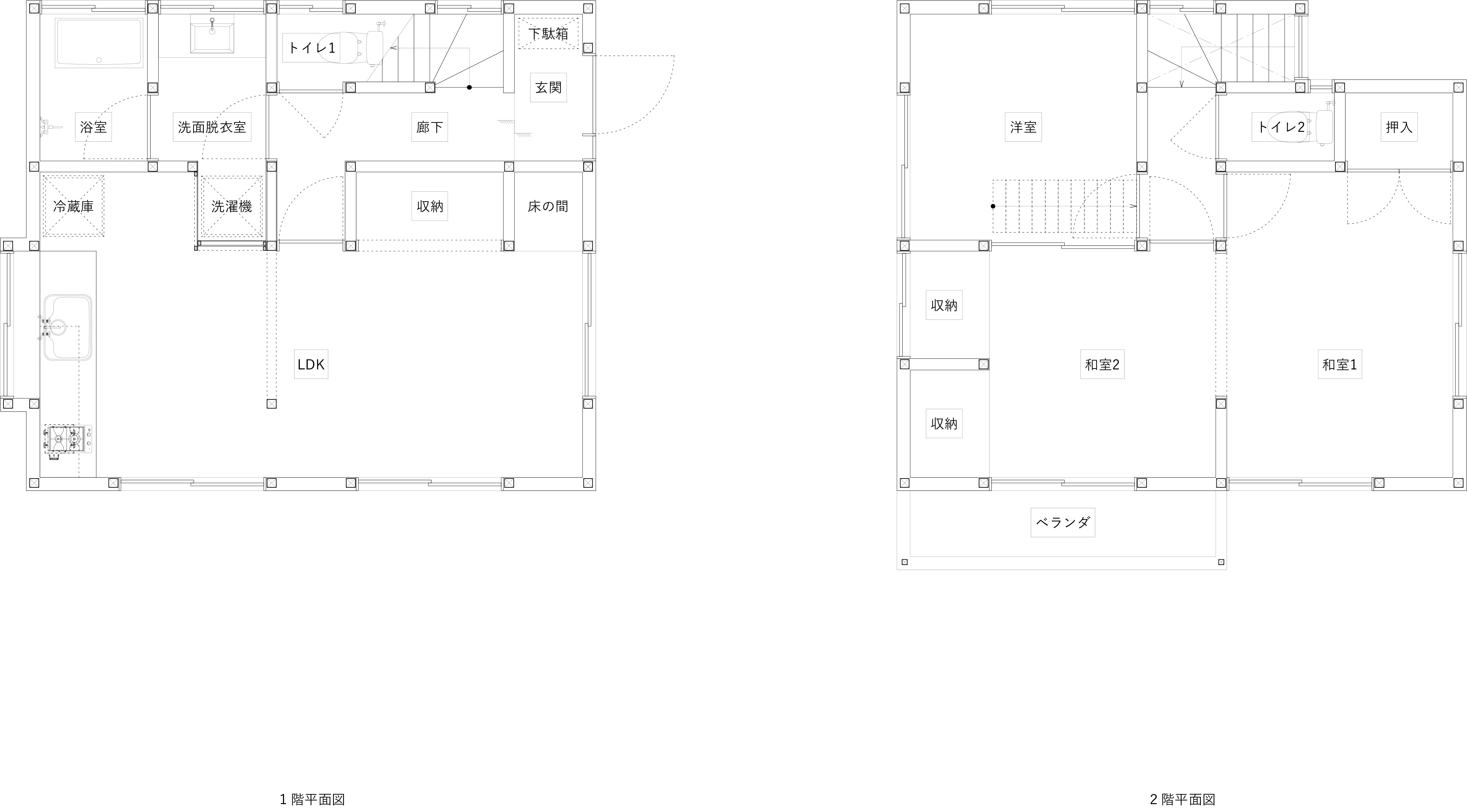
短期集中!高円寺ライフ!ゆったり一軒家で、年末までのカウントダウンを。(東京都杉並区67㎡の賃貸物件)
高円寺の広々とした一軒家に
お家賃9万9000円で住める…!?
床の間に残された柱も、
なんだか個性的。
高円寺と中野、
私もちょこちょこ
遊びに行きますが、
行くたびに面白い場所と出会える
本当に奥深いエリアですよねえ。
短期集中・高円寺ライフ! 挑戦したい方、どうぞご一報を!
さらに詳しく知りたい方は、 以下のリンク先もご参考くださいね。 ★わ株式会社
文・戸田江美
デザイナー。荒川区のマンションの大家をしている。落語が好き。@530e

いま募集中の物件一覧
お部屋探しに!今空いている物件だけを絞り込んで探せます
詳しくはこちら