
超収納と小上がりの幸福な関係
こちらは過去の物件です。アーカイブとしてお楽しみ下さい。
ダイニングが小上がり。
珍しいですし、
なんの意図があって
わざわざ天井高を低く、
圧迫感を出すの??
と思いきや、
これにはちゃんと意味が有った!
じゃん!

出典: suumo.jp
床下収納!
この広めの床下収納を確保する為に
小上がりを設けたのかもしれません。
収納場所が他に余り無いから
こんな床下収納を?と
思いがちでしょうが全く逆で、
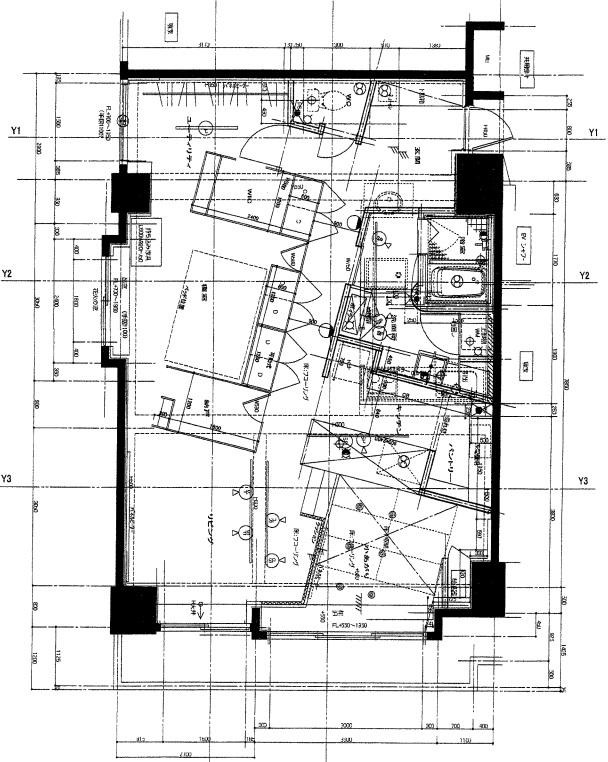
間取り図を見る限り
とってもとっても収納天国。

出典: suumo.jp
玄関上がって正面も収納!

出典: suumo.jp
廊下だって収納扉の連続!

出典: suumo.jp
この収納扉の裏手に
ユーティリティという名の
ウオークインクローゼットも

出典: suumo.jp
その
ユーティリティ横にも
正真正銘のWIC。

出典: suumo.jp
それ以外にもよく見ると
納戸の文字も!!?
というようにこの物件、
超収納可能物件!
それだけに、
ウリであるその
超収納力を
徹底的に上げる為にもと
床下収納を作ることになって
結果小上がりにしたのでは??

出典: suumo.jp
それ以外で
すぐに考えられる理由となると、
落語家さんの高座が行い易い、
とか
床に座ってご飯を食べるのが
極端に好き!って人の為の
このリノベーション??
うーん、それよりは、
やはり素直に
モノをたくさん持ってる人の為の
整理整頓できるおしゃれハウス!
というイメージではなかろうかと。
だって、暖房これですよ?!

出典: suumo.jp
このパネル!
かさばらないこのパネル!が
暖房。
オシャン!
洗面台もいい感じのウッディ感と

出典: suumo.jp
水の飛び跳ね対策のタイル。
ここ、拭き忘れ易いですからね。
丸い鏡の縁も可愛い!
浴室だって
ウッディ感をギリギリ出すこの柄を

出典: suumo.jp
THE!気遣い。
キッチンもこのサイズ。

出典: suumo.jp
しかもよく見ると
キッチン奥にパントリー!
さすが
収納力にこだわるだけある!
コンロの耐熱用に
洗面所のあのタイル。
ここまで統一感あると
ガチャガチャしなくって
いいですよね。
一方で
トイレはそっちに寄せないで
でも無個性寄りなので
きっと普通に落ち着くはず。

出典: suumo.jp
いい配分、いいバランス。
と
この物件、
記事を書けば書くほど
良い所が出てくる感じ。
これでペット相談、
最寄駅徒歩10分って

出典: suumo.jp
ありでしょう。
珍しいですし、
なんの意図があって
わざわざ天井高を低く、
圧迫感を出すの??
と思いきや、
これにはちゃんと意味が有った!
じゃん!

床下収納!
この広めの床下収納を確保する為に
小上がりを設けたのかもしれません。
収納場所が他に余り無いから
こんな床下収納を?と
思いがちでしょうが全く逆で、
間取り図を見る限り
とってもとっても収納天国。

玄関上がって正面も収納!

廊下だって収納扉の連続!

この収納扉の裏手に
ユーティリティという名の
ウオークインクローゼットも

その
ユーティリティ横にも
正真正銘のWIC。

それ以外にもよく見ると
納戸の文字も!!?
というようにこの物件、
超収納可能物件!
それだけに、
ウリであるその
超収納力を
徹底的に上げる為にもと
床下収納を作ることになって
結果小上がりにしたのでは??

それ以外で
すぐに考えられる理由となると、
落語家さんの高座が行い易い、
とか
床に座ってご飯を食べるのが
極端に好き!って人の為の
このリノベーション??
うーん、それよりは、
やはり素直に
モノをたくさん持ってる人の為の
整理整頓できるおしゃれハウス!
というイメージではなかろうかと。
だって、暖房これですよ?!

このパネル!
かさばらないこのパネル!が
暖房。
オシャン!
洗面台もいい感じのウッディ感と

水の飛び跳ね対策のタイル。
ここ、拭き忘れ易いですからね。
丸い鏡の縁も可愛い!
浴室だって
ウッディ感をギリギリ出すこの柄を

THE!気遣い。
キッチンもこのサイズ。

しかもよく見ると
キッチン奥にパントリー!
さすが
収納力にこだわるだけある!
コンロの耐熱用に
洗面所のあのタイル。
ここまで統一感あると
ガチャガチャしなくって
いいですよね。
一方で
トイレはそっちに寄せないで
でも無個性寄りなので
きっと普通に落ち着くはず。

いい配分、いいバランス。
と
この物件、
記事を書けば書くほど
良い所が出てくる感じ。
これでペット相談、
最寄駅徒歩10分って

ありでしょう。
いま募集中の物件一覧
お部屋探しに!今空いている物件だけを絞り込んで探せます
詳しくはこちら


