
白金台で、細ながーい戸建暮らし。
こちらは過去の物件です。アーカイブとしてお楽しみ下さい。
あまりにも細長すぎて、
つい二度見してしまいました。
と同時に、これ本当に住めるの?!
という、やや心配な感情も...。

出典: suumo.jp
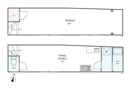
間取りはシンプル。
細長い2階建て。
1階は7帖と水回り、
2階は8帖のベッドルーム。
間取りだけみると、
なんだ普通の家じゃん!
と思っちゃうけども、

出典: suumo.jp
どうですこの外観、
やっぱりなんだか心配...笑
けどね、ご安心ください。

出典: suumo.jp
意外と住みやすそう...?!
キッチンの横に、細長いソファ。
あえて大きめなソファを置いてるあたりの潔さも、居心地の良さにつながってるのかな。

出典: suumo.jp
もちろん、小さめのソファにして、
リビングを広く使うのも。
ソファは一人用にして、
二人がけのダイニングテーブルを
置いちゃうのもありだなぁ。

出典: suumo.jp
キッチンも、必要最低限に。
実はこのキッチンに、技ありのデザインが隠れていて。
なんと、正面の壁に大きな鏡!
狭い空間を広く見せるのに効果的。
料理をしている姿を自分でもチェックができて、一石二鳥という優れもの。
圧迫感がなくなるだけでも、
住み心地ってかわるはずです。

出典: suumo.jp
キッチン奥には、脱衣所とお風呂。
シャワーしか映っていませんが、
小さなバスタブもあるよう。

出典: suumo.jp
階段下を利用してトイレ。
男性はちょっと使いづらいかもしれませんが、
他が広くなるのであれば致し方ない。
個人的には、この籠り感が逆に
居心地よさそうだな、なんて。

出典: suumo.jp
2階のベッドルームも割と余裕が。
なんなら、ソファベッドを置いて、
2階をリビング兼用にしちゃうのも!
1階には、少し大きめの
ダイニングテーブルを置いて、
ごはんを食べるだけじゃなく、
ちょっとした作業場としても。

出典: suumo.jp
なんて暮らしやすそうな空間が、
まさかほそながーい建物に
隠されていようとは想像できまい。
そして、物件も良いですが、
何よりこの立地もまた魅力的。
白金で細ながーい戸建暮らし。
そのギャップもまた面白い!
つい二度見してしまいました。
と同時に、これ本当に住めるの?!
という、やや心配な感情も...。

間取りはシンプル。
細長い2階建て。
1階は7帖と水回り、
2階は8帖のベッドルーム。
間取りだけみると、
なんだ普通の家じゃん!
と思っちゃうけども、

どうですこの外観、
やっぱりなんだか心配...笑
けどね、ご安心ください。

意外と住みやすそう...?!
キッチンの横に、細長いソファ。
あえて大きめなソファを置いてるあたりの潔さも、居心地の良さにつながってるのかな。

もちろん、小さめのソファにして、
リビングを広く使うのも。
ソファは一人用にして、
二人がけのダイニングテーブルを
置いちゃうのもありだなぁ。

キッチンも、必要最低限に。
実はこのキッチンに、技ありのデザインが隠れていて。
なんと、正面の壁に大きな鏡!
狭い空間を広く見せるのに効果的。
料理をしている姿を自分でもチェックができて、一石二鳥という優れもの。
圧迫感がなくなるだけでも、
住み心地ってかわるはずです。

キッチン奥には、脱衣所とお風呂。
シャワーしか映っていませんが、
小さなバスタブもあるよう。

階段下を利用してトイレ。
男性はちょっと使いづらいかもしれませんが、
他が広くなるのであれば致し方ない。
個人的には、この籠り感が逆に
居心地よさそうだな、なんて。

2階のベッドルームも割と余裕が。
なんなら、ソファベッドを置いて、
2階をリビング兼用にしちゃうのも!
1階には、少し大きめの
ダイニングテーブルを置いて、
ごはんを食べるだけじゃなく、
ちょっとした作業場としても。

なんて暮らしやすそうな空間が、
まさかほそながーい建物に
隠されていようとは想像できまい。
そして、物件も良いですが、
何よりこの立地もまた魅力的。
白金で細ながーい戸建暮らし。
そのギャップもまた面白い!
いま募集中の物件一覧
お部屋探しに!今空いている物件だけを絞り込んで探せます
詳しくはこちら


