
おもしろく使えそうな土間!
こちらは過去の物件です。アーカイブとしてお楽しみ下さい。
炭のモルタル仕上げの土間が、
コーナーにぐるっと。
これは、おもしろく使えそう。
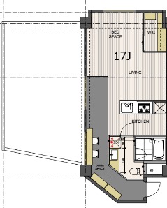
さっそく間取り図をご覧下さい。

goodroom
ルーフバルコニーがあるんですね。
玄関からリビングまで土間。
ちょっとした棚もありますね。

goodroom
こういう小道っぽい空間、
家の中にあるってうれしいな。
カフェっぽくも使えるかなあ。

goodroom
そうそう、こんなイメージ。
雑誌をぼんやり眺めたり、
お勉強スペースみたいなね。

goodroom
壁もそうだけど、高い天井も
なかなかにざらっとした仕上げ。

goodroom
こんな感じでリビングへ。
おもしろい繋がり方ですね。
対面式のキッチンもいい。

goodroom
うーん、惚れ惚れする。
こういう土間の引き込み方、
クリエイティブな発想。

goodroom
それに、このルーフバルコニー。
あの土間からでられるなんて!
これはうれしい。多摩川の花火も。

goodroom
キッチンもゆったりですよね、
3口ガスコンロなんですよ。

goodroom
17帖の広いリビングと、
ウォークインクローゼットだけ、
というのもなかなかにユニーク。

goodroom
ここで二人暮らしするとしたら
土間で作業しているのを眺めたり
ルーバルで日向ぼっこしたり…。

goodroom
バーベキューしたり…。
そんなイメージでしょうか。
この家だから見られる相手の姿、

goodroom
みたいなものがあるかも?
そう思いました。

goodroom
いかがですか?
おもしろく使えそうな土間のある
リノベーションを住みこなそう!
コーナーにぐるっと。
これは、おもしろく使えそう。
さっそく間取り図をご覧下さい。

ルーフバルコニーがあるんですね。
玄関からリビングまで土間。
ちょっとした棚もありますね。

こういう小道っぽい空間、
家の中にあるってうれしいな。
カフェっぽくも使えるかなあ。

そうそう、こんなイメージ。
雑誌をぼんやり眺めたり、
お勉強スペースみたいなね。

壁もそうだけど、高い天井も
なかなかにざらっとした仕上げ。

こんな感じでリビングへ。
おもしろい繋がり方ですね。
対面式のキッチンもいい。

うーん、惚れ惚れする。
こういう土間の引き込み方、
クリエイティブな発想。

それに、このルーフバルコニー。
あの土間からでられるなんて!
これはうれしい。多摩川の花火も。

キッチンもゆったりですよね、
3口ガスコンロなんですよ。

17帖の広いリビングと、
ウォークインクローゼットだけ、
というのもなかなかにユニーク。

ここで二人暮らしするとしたら
土間で作業しているのを眺めたり
ルーバルで日向ぼっこしたり…。

バーベキューしたり…。
そんなイメージでしょうか。
この家だから見られる相手の姿、

みたいなものがあるかも?
そう思いました。

いかがですか?
おもしろく使えそうな土間のある
リノベーションを住みこなそう!

いま募集中の物件一覧
お部屋探しに!今空いている物件だけを絞り込んで探せます
詳しくはこちら