
造作キッチンがかわいい広めの部屋でひとり暮らし|東京都新宿区 賃貸 40㎡
こちらは過去の物件です。アーカイブとしてお楽しみ下さい。
1面でもあれば特別な空間になる、
淡いブルーのクロスが気に入った。
広めのひとり暮らしだったら
好みをどんどん取り入れていこう。

あ、でもあまりにも広すぎると
ソワソワしてしまうから…
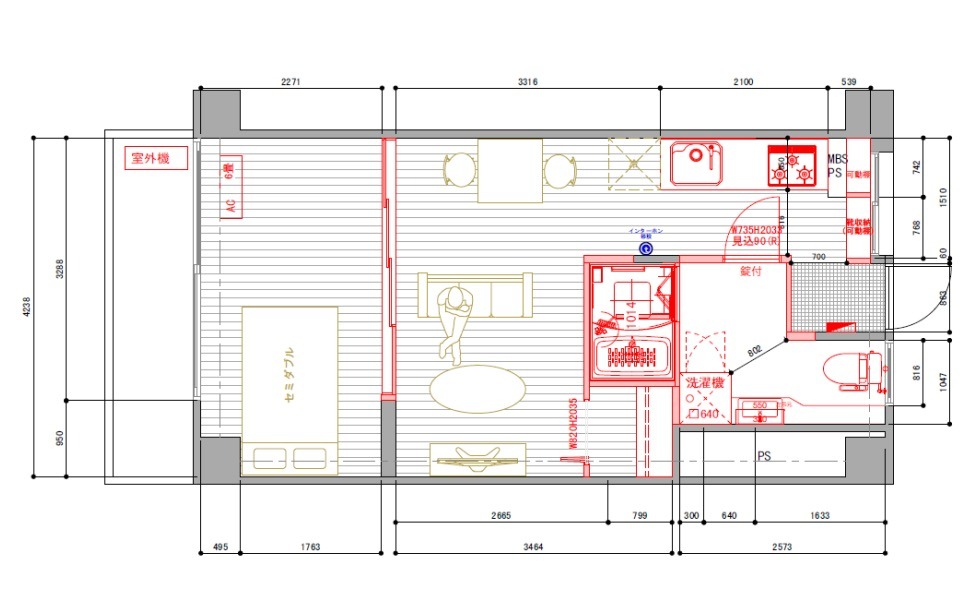
ここならいいかも、の40㎡。
そうそう、これくらい。

いつも目に入るように工夫したい色です。
私だったらスケルトンの本棚をDIYして
本を探すたびにチラッと見える青に
「ふふふ…うちの壁、かわいいな」と
こっそり幸せ、かみしめたいですね。

収納はリビングのすみっこに。
照明付きでけっこう奥行きがありそう。
とことこ歩いて入るタイプかな。

そしてお気づきのとおり、
引き戸を開けるともうひとつ部屋があり

全開にしたらこんなふう。
玄関側のキッチンまで見通せちゃう。
のびのび〜と暮らせそうですよね。

せっかくなので窓側の部屋には
ほしかったダブルベッドにトライする?
エアロバイクも買おうかな。
なにしよう、やってみたかったこと、
叶えられそうな気がする。

なかでもドキドキさせてくれたのが
木製の造作キッチンでして、
なんというそつのないかわいさか、と。
かわいいタイルも貼ってくれ、
キッチン下に収納までこしらえてくれ
グリルまで付けてくれ…感謝。

水まわりがかわいいって
とってもポイント高いなと思います。
ほら、洗面台もかわいい。
さらにトイレを避けるように
カクっとなっているところもいい。
こうした技の利いたデザイン、
ジャストフィット! という感じがして
とても好きなんですよねえ…。

お風呂場の壁面も飽きさせない。
アクセントパネルにするだけで
気分が変わっていいものです。

いいなあ、この広さ、
このデザインのお部屋が
新宿からおよそ15分という立地だなんて。
都心でのびのび〜っと暮らせるなんて
きっと気分がいいでしょうね。
淡いブルーのクロスが気に入った。
広めのひとり暮らしだったら
好みをどんどん取り入れていこう。

あ、でもあまりにも広すぎると
ソワソワしてしまうから…
ここならいいかも、の40㎡。
そうそう、これくらい。

いつも目に入るように工夫したい色です。
私だったらスケルトンの本棚をDIYして
本を探すたびにチラッと見える青に
「ふふふ…うちの壁、かわいいな」と
こっそり幸せ、かみしめたいですね。

収納はリビングのすみっこに。
照明付きでけっこう奥行きがありそう。
とことこ歩いて入るタイプかな。

そしてお気づきのとおり、
引き戸を開けるともうひとつ部屋があり

全開にしたらこんなふう。
玄関側のキッチンまで見通せちゃう。
のびのび〜と暮らせそうですよね。

せっかくなので窓側の部屋には
ほしかったダブルベッドにトライする?
エアロバイクも買おうかな。
なにしよう、やってみたかったこと、
叶えられそうな気がする。

なかでもドキドキさせてくれたのが
木製の造作キッチンでして、
なんというそつのないかわいさか、と。
かわいいタイルも貼ってくれ、
キッチン下に収納までこしらえてくれ
グリルまで付けてくれ…感謝。

水まわりがかわいいって
とってもポイント高いなと思います。
ほら、洗面台もかわいい。
さらにトイレを避けるように
カクっとなっているところもいい。
こうした技の利いたデザイン、
ジャストフィット! という感じがして
とても好きなんですよねえ…。

お風呂場の壁面も飽きさせない。
アクセントパネルにするだけで
気分が変わっていいものです。

いいなあ、この広さ、
このデザインのお部屋が
新宿からおよそ15分という立地だなんて。
都心でのびのび〜っと暮らせるなんて
きっと気分がいいでしょうね。
いま募集中の物件一覧
お部屋探しに!今空いている物件だけを絞り込んで探せます
詳しくはこちら


